网站首页  词典首页


请输入您要查询的字词:

 

字词 FZH条包与NK条包透明纸包装机
类别 中英文字词句释义及详细解析
释义

FZH条包与NK条包透明纸包装机


1.结构特点

(1)小包烟成双层输入FZH机,既可采用手工放入也可直接接收来自前面机器的烟包。条盒成叠放在条盒架上,利用真空吸取。推杆将条盒纸预折,确保条包有棱有角。烟包输入较少时,机器不停止。条盒在被送往折叠转盘途中,上胶板给条盒接口及盒盖自动上胶。该机可用压印模或印章将产品批号印制在条包正面的一侧或两侧。

(2)条盒透明纸滚筒安装距离地面很近,并通过导向辊展开,来自FZH机的条包,通过控制装置松开离合器,该控制装置控制薄膜的预拉,薄膜在折叠转盘中将条盒包装完毕,玻璃纸或聚丙烯薄膜的粘接线可在条盒的正面,也可在纵向侧面。如需要,烟包可直接用纸张或薄膜包装,即不用条盒包装机。

2.主要技术参数

生产能力:72条/min。

条包规格:长×宽×高为200mm×70mm×35mm(最小)。

长×宽×高为302mm×104mm×35mm(最大)。

装机功率:9kW(带泵),8kW(不带泵)。

压缩空气:6×105Pa,8.5m3/h。

真空:(0.75~0.9)×105Pa,25m3/h。

机器质量:3000kg。

3.外形尺寸

见图9-4-33所示。

图9-4-33 FZH/NK条包及透明纸条包机示意图

1-条盒纸架 2-传送(左右任选) 3-折叠转盘 4,8-折叠成型 5-包装材料 6-拉带 7-转盘 9-胶盒 10-输出 11-开关柜

4.生产厂家

德国斯慕门(Schmermund)公司,航天部一院。

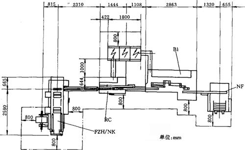
5.安装图示

见图9-4-34所示。

图9-4-34 NF-B1-RC-FZH/NK包装机组安装图

随便看

 

离鸟网收录3541549条中英文词条,其功能与新华字典、现代汉语词典、牛津高阶英汉词典等各类中英文词典类似,基本涵盖了全部常用中英文字词句的读音、释义及用法,是语言学习和写作的有利工具。

 

Copyright © 2004-2024 vtrois.com All Rights Reserved
更新时间:2026/4/9 4:43:03