网站首页  词典首页


请输入您要查询的字词:

 

字词 中小型模架
类别 中英文字词句释义及详细解析
释义

中小型模架


3.2.1.1 中小型模架的结构形式(品种)

1.中小型模架可按以下特征划分品种

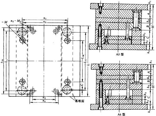
①按结构特征可分为基本型和派生型:基本型有四种,即A1、A2、A3和A4,如图3-24所示;派生型有九种,即P1、P2、P3、P4、P5、P6、P7、P8和P9,如图3-25所示。

图3-24 基本型模架结构A1~A4型

图3-25 派生型模架结构P1~P9型

②按导柱和导套的安装形式可分为正装(代号Z)和反装(代号F)两种,序号1、2、3为分别采用带头导柱、有肩导柱和有肩定位导柱,如图3-26所示。

图3-26 正装和反装导柱模架结构

③按动、定模座板的尺寸可分为有肩和无肩两种。

2.各种模架的特点和用途(见表3-19)

表3-19 各种模架的特点和用途

3.2.1.2 中小型模架的尺寸组合

中小型模架系列依模板的宽和长(B×L)划分,除了模板的厚度需由设计者从标准中选定外,模架的其它相关尺寸在标准中都已规定。图3-27是模架有关的周界尺寸,表3-20是中小型模架标准的尺寸组合。

图3-27 模架周界尺寸

表3-20 塑料注射模中小型模架标准的尺寸组合(mm)

3.2.1.3 模架的规格系列

中小型模架规格依同品种、宽度系列所选模板(A、B板)和垫块(C)的厚度划分。

例:周界尺寸为355×L(1)的模架(见表3-21),该系列共有64种规格,以01~64表示,这64种编号是由A、B板各8种厚度排列组合而成,A、B板的8种厚度为:25、32、40、50、63、80、100和125mm,详见表3-22。

表3-21 355×L(1)模架(mm)

表3-22 周界尺寸为355×L(L≤560)的模架规格(mm)

3.2.1.4 中小型模架的标记方法

塑料注射模中小型模架规格的标记方法如下:

例:A3-355450-16-F1 GB12556—90表示的模架为:基本型A3型,模板B×L为355×450,规格编号为16,即模板A为32mm,模板B为125mm,导柱为反装F1。

随便看

 

离鸟网收录3541549条中英文词条,其功能与新华字典、现代汉语词典、牛津高阶英汉词典等各类中英文词典类似,基本涵盖了全部常用中英文字词句的读音、释义及用法,是语言学习和写作的有利工具。

 

Copyright © 2004-2024 vtrois.com All Rights Reserved
更新时间:2026/4/8 10:44:26