如图8.2-1所示,将主机吊起后,将主机承重梁置于主机下,按照井道土建布置图确认主机安装方向,用螺栓将主机支承梁临时固定在主机下,水平放置于地面。利用线坠找出轿厢曳引点在支承梁的相对位置画上一条直线,并从此处用拉尺量出一段距离d,使d=L+100(L的大小参照图8.1-1所示),然后沿此处用风焊切割去多余的部分。
将主机支承梁按图8.2-2所示焊接在支承座上(支承座一般是由土建提供的混凝土机座上预埋钢板的结构,焊接时可以直接将主机支承梁焊接在预埋的钢板上)。主机支承梁可以参照图8.2-3所示进行定位。在主机安装前,应首先将导向轮安装在导向轮梁上,如图8.2-1所示。

图8.2-2 曳引机安装示意

图8.2-3 曳引机承重梁定位1
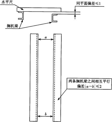
放置好主机支承梁以后,用水平尺检查支承梁两个方向的水平以及两根支承梁之间的水平度,水平度偏差不应该超过1/1000。若发现误差,可以在支承梁与下面的支承座之间插入垫片来进行调节。如图8.2-4~5所示。

图8.2-4 曳引机承重梁定位2

图8.2-5 曳引机承重梁定位3