网站首页  词典首页


请输入您要查询的字词:

 

字词 井道内电气设备的安装
类别 中英文字词句释义及详细解析
释义

井道内电气设备的安装


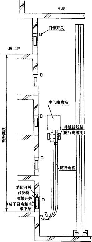
井道内的设备除了前面章节介绍的机械设备外,还应包括下列电气设备:随行电缆、极限开关、隔磁板、召唤箱(外呼盒)、门锁开关、井道挂线架、中间接线箱、泊梯开关(驻停开关或锁梯钥匙)、消防开关、底坑检修箱、涨绳轮开关、缓冲器开关等。本节将对这些设备的安装进行介绍。

井道内电气设备可以参考图11.3-1所示。

图11.3-1 井道内电气设备示意

随便看

 

离鸟网收录3541549条中英文词条,其功能与新华字典、现代汉语词典、牛津高阶英汉词典等各类中英文词典类似,基本涵盖了全部常用中英文字词句的读音、释义及用法,是语言学习和写作的有利工具。

 

Copyright © 2004-2024 vtrois.com All Rights Reserved
更新时间:2026/4/8 16:58:14