网站首页  词典首页


请输入您要查询的字词:

 

字词 供电系统
类别 中英文字词句释义及详细解析
释义

供电系统


饮料厂一般采用一个电源。低压的动力和照明配电电压为220/380V三相四线制(或者三相五线制),高压10kV,35kV将逐渐增多。

供电系统要和当地供电部门一起商议确定,应符合国家有关规程,安全可靠、运行方便、经济节约。

按规定,装接容量在250kW以下者,可以220/380V三相四线制低压供电,超过此限者则应高压供电。变压器容量为320kV·A以上者,须高压供电,高压量电;320kV·A及以下者为高压供电,低压量电。特殊情况,具体协商。

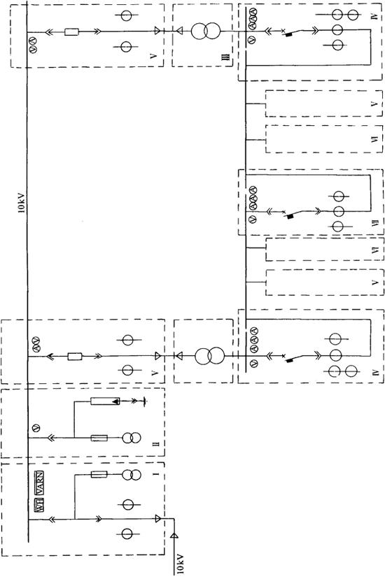
采用两台变压器供电时,低压侧应设有联络线。适合饮料厂的常见的高压供电,高压量电系统见图6-7-1及图6-7-2。

图6-7-1 高压供电、高压量电

Ⅰ-高压供电量电装置 Ⅱ-避雷器及电压互感器装置 Ⅲ-变电装置 Ⅳ-低压总控制保护装置 V-馈电装置 Ⅵ-无功功率补偿装置

图6-7-2 两台变压器供电系统-高压供电量电装置 Ⅱ-避雷器及电压互感器装置 Ⅲ-变电装置 Ⅳ-低压总控制保?爸芒酰〉缱爸谩、觯薰β什钩 爸谩、鳎脱沽缱爸谩?

随便看

 

离鸟网收录3541549条中英文词条,其功能与新华字典、现代汉语词典、牛津高阶英汉词典等各类中英文词典类似,基本涵盖了全部常用中英文字词句的读音、释义及用法,是语言学习和写作的有利工具。

 

Copyright © 2004-2024 vtrois.com All Rights Reserved
更新时间:2026/4/7 8:42:18