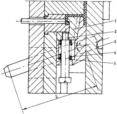
图4-140为斜导柱、滑块联合抽芯机构。斜滑块1以T形槽的形式装于滑块5,并可在其中滑动,开模时,斜导柱3带动滑块5移动,斜滑块1由于制品及弹簧4的限制,不随之移动,而在斜面的作用下完成内侧抽芯,此时滑块5已与限位螺钉2接触,继续开模,则斜导柱3带动滑块5及斜滑块1完成全部抽芯。

图4-140 斜导柱、滑块联合抽芯机构
1—斜滑块 2—限位螺钉 3—斜导柱 4—弹簧 5—滑块
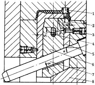
图4-141为斜导柱、斜滑块联合抽芯机构。斜滑块2插入外滑块5,其后端制成斜面并以T形槽与内滑块6相配合,横销4贯穿内滑块6及外滑块5。开模时,斜导柱7首先带动内滑块6移动,这时斜滑块2被抽动,完成制件小侧凹处的抽芯,同时止动销3从外滑块5中抽出,此后在横销4的作用下,斜导柱7带动外滑块5完成全部抽芯动作。

图4-141 斜导柱、斜滑块联合抽芯机构
1—型芯 2—斜滑块 3—止动销 4—横销 5—外滑块 6—内滑块 7—斜导柱 8—锁紧块
图4-142为弹簧、斜导柱内外抽芯机构。顶出时,推杆1推动动模板3,外滑块6在斜导柱2作用下完成制品外侧凹的抽芯,与此同时,当内滑块7被推动l距离时,在弹簧4的作用下,将移动S1距离,完成制品内侧抽芯。

图4-142 弹簧、斜导柱内外抽芯机构
1—推杆 2—斜导柱 3—动模板 4—弹簧 5—挡板 6—外滑块 7—内滑块