网站首页  词典首页


请输入您要查询的字词:

 

字词 典型焊接结构分析
类别 中英文字词句释义及详细解析
释义

典型焊接结构分析


11.4.6.1 焊接机身

焊接机身的功能、要求、常用材料等内容介绍如下:

(1)功能:支承各运动部件质量、运动部件之间的作用力和运动时产生的惯性力.

(2)要求:足够的强度和刚度.

(3)常用材料:焊接机身常选用焊接性好的低碳钢、普通低合金钢(如16Mn等).

(4)比较各种开放型断面梁的抗弯、抗扭刚度及减振性能(图11-127、表11-96).

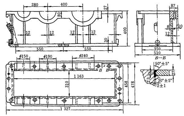
(5)减速器箱体:减速器箱体的基本功能是对齿轮传动机构的刚性支承,要求具有足够的刚度,应按刚度进行设计,同时必须满足致密性和尺寸稳定性的要求.箱体材料主要为Q235A钢.箱体结构见图11-128及表11-97和表11-98.防止漏油设计见图11-129.规定箱体做致密性试验,建议用磁粉或着色渗透性检验.焊后应做消除应力热处理.图11-130示出一单壁板剖分式减速器箱体的下箱体结构.

图11-127 各种形式的焊接梁试件

表11-96 焊接梁试件的抗弯、抗扭刚度及减振性能

图11-128 减速器箱体两相邻轴承座结构

表11-97 剖分式箱体、轴承座的结构形式

表11-98 轴承座和法兰与壁板间的焊接接头设计

图11-129 防止漏油的设计

(a)不易保证质量,易造成渗漏;(b)采用圆柱形的螺钉座,较好A点是三条焊缝交汇处,B点、C点是焊缝方向发生90°转弯处,这些点的焊接质量不易保证

图11-130 单壁板剖分式减速器箱体的下箱体结构

11.4.6.2 焊接容器

焊接容器的功能、要求、设计和制造、典型结构特点等内容介绍如下:

(1)功能:贮存气体或液体,有时承受高温高压条件.

(2)要求:足够的强度及良好的密封性.

(3)设计和制造:应遵守专门的规程,如JB/Z105—73《钢制高压容器的焊接规程》.

(4)典型结构特点:容器一般为圆筒形或球形,断面为圆形;筒体由厚钢板弯制以纵缝连接而成;封头为球形或椭球形,与筒体用环缝实现连接;主要为对接焊缝,厚度无突变.

(5)薄壁容器:薄壁容器的壁厚比直径小得多,可认为应力在壁厚方向上分布是均匀的,可按薄膜应力计算(表11-99).

焊接容器用材除满足使用性能外,要求有良好的焊接性.表11-100~表11-103列出锅炉用钢和压力容器用钢及其适用范围.

从工艺上看,由于纵缝所承受的环向应力是环缝承受轴向应力的两倍,因而纵缝的焊接要求高,应保证质量,环缝则可选较软材料.对于用σb≥1400MPa的高强钢制造的容器(见图11-131),不允许采用环形垫圈,应尽量采用对接,保证焊缝与母材平滑过渡.为了保证焊缝双面成形良好,施焊时在焊缝背面设置可拆卸的临时垫板.如果封闭容器内部无法装卸临时垫板,则必须采用工艺措施保证焊缝背面成形良好.为防止冷裂纹,每道焊接工序都需高温回火,产品焊完之后要进行调质处理.

表11-99 薄壁容器的应力

表11-100 锅炉用钢按组织的分类

表11-101 常用锅炉钢板适用范围

表11-102 按焊接特性分类的压力容器用钢

表11-103 压力容器用钢的容许使用温度范围

图11-131 薄壁高压容器

随便看

 

离鸟网收录3541549条中英文词条,其功能与新华字典、现代汉语词典、牛津高阶英汉词典等各类中英文词典类似,基本涵盖了全部常用中英文字词句的读音、释义及用法,是语言学习和写作的有利工具。

 

Copyright © 2004-2024 vtrois.com All Rights Reserved
更新时间:2026/4/7 8:08:59