冷凝器的作用是使制冷压缩机排除的过热气体在冷凝器中降温凝结而成为液体。常用的有卧式壳管、立式壳管、蒸发式、淋水式等冷凝器。
(一)卧式壳管冷凝器
卧式壳管冷凝器结构如图4-13-8所示,主要技术参数见表4-13-5。

图4-13-8 卧式壳管冷凝器
1-筒体 2-前盖 3-后盖 4-放气旋塞 5-放水旋塞 6-安全阀 7-压力表 8-放气阀 9-均压管 10-放油阀
表4-13-5 卧式壳管氟利昂冷凝器主要技术参数

注:大连冷冻机厂制造。
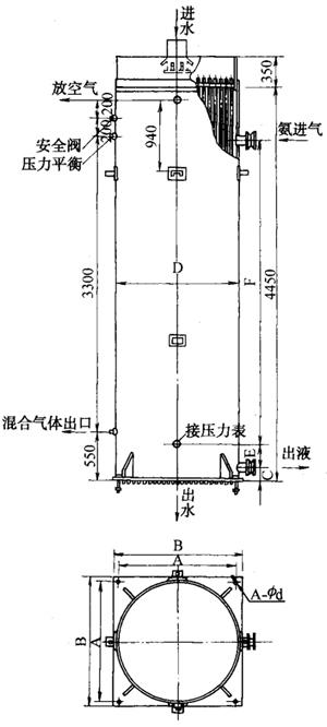
(二)立式壳管冷凝器
立式壳管冷凝器结构如图4-13-9所示,主要技术参数见表4-13-6。

图4-13-9 立式壳管冷凝器
表4-13-6 立式壳管冷凝器主要技术参数

注:上海第一冷冻机厂制造。