网站首页  词典首页


请输入您要查询的字词:

 

字词 国内日用陶瓷厂具有特色的车间布置实例
类别 中英文字词句释义及详细解析
释义

国内日用陶瓷厂具有特色的车间布置实例


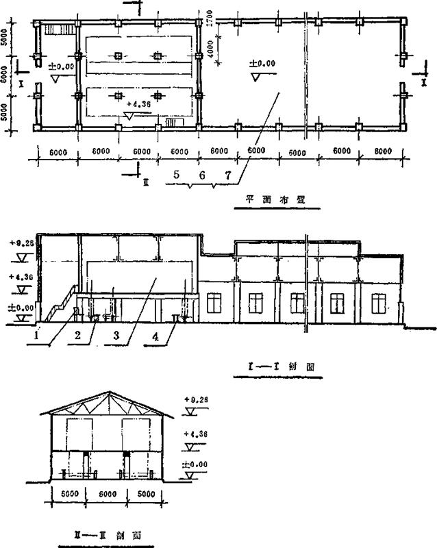
(一)唐山某厂原料车间(破碎工段)工艺布置(图7-8)

图7-8 唐山某厂原料车间(破碎工段)工艺平,剖面布置图

(二)唐山某厂成型车间工艺布置(图7-9)

图7-9 唐山某厂成型车间平、剖面工艺布置示意图

1-滚压成型机;2-修坯(或粘接把);3-链式烘房主体;4-检验(或干修坯);5-抹水施釉;6-白坯贮存:7-装窑烧成

(三)山东某厂主车间工艺布置(图7-10)

图7-10 山东某厂主车间工艺布置示意图

1-成型、修坯:2-施釉;3-白坯贮存:4-装出窑车;5-烧成

合格白坯通过立式链带吊架,从二层运至底层平皮带输送机上,人工运送到装车工位。

随便看

 

离鸟网收录3541549条中英文词条,其功能与新华字典、现代汉语词典、牛津高阶英汉词典等各类中英文词典类似,基本涵盖了全部常用中英文字词句的读音、释义及用法,是语言学习和写作的有利工具。

 

Copyright © 2004-2024 vtrois.com All Rights Reserved
更新时间:2026/4/6 15:17:47