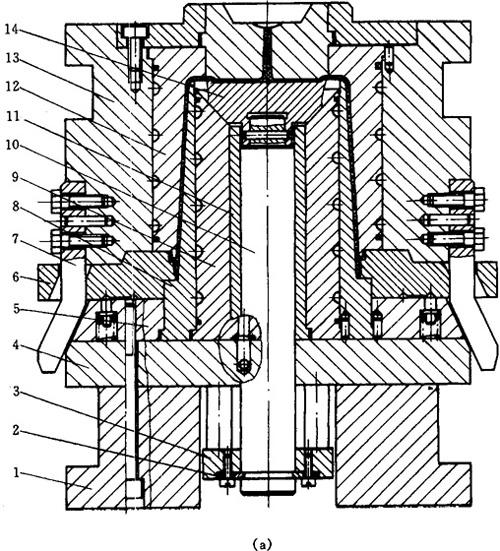
该模具的特点是,制品的螺纹由一对滑块6成型,由弯销7进行脱螺纹,模具结构较为紧凑;定模座板13的锥面既使滑块6得到强有力的锁紧,又可使动、定模自动定准中心,使制品获得均匀的壁厚;制品的内外表面均有螺旋式水路进行冷却,具有较好冷却效果;制品由推块14顶出,制品与推块接触面较大且受力均匀。连接杆10及衬套11均为淬硬件。此模具适合于大批量生产。此模具为典型的成型外螺纹的注塑模具。
开模时,在弯销7的作用下使滑块6向两侧分型,同时塑件被带到动模。顶出时,注射机的顶针顶动连接杆10带动推块14将塑件从型芯8上顶出,见图5-13。

图5-13(a) 塑料圆盒注塑模具主视图

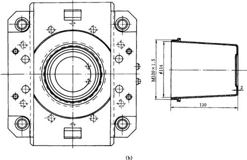
图5-13(b) 塑料圆盒注塑模具俯视图及塑件图
1—支座 2—卡圈 3—推板 4—支承板 5—型芯固定板 6—滑块 7—弯销 8—型芯 9—水套 10—连接杆 11—衬套 12—定模镶块 13—定模座板 14—推块