网站首页  词典首页


请输入您要查询的字词:

 

字词 塑料门框注射模具
类别 中英文字词句释义及详细解析
释义

塑料门框注射模具


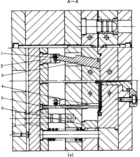
制品为薄壁框形件,内侧由八个凸台(搭钩),外表面不允许有浇口痕迹。为此,该模具采用了两个弧形潜伏浇口,从制品的两个对角对称进料。为便于弧形浇口的制造,将其设置在组合式浇道镶件4内。

制品八个内侧凸台分别由八个斜推杆成型。因制品内凸缘的影响斜推杆3不能向心抽芯,故采用了沿制品侧壁抽芯。

顶出时,斜推杆3及推杆5分别推动制品及浇注系统凝料,同时,斜推杆3在顶出过程中沿斜面完成抽芯工作。最终将制品顶出并切断浇口,见图5-21。

图5-21(a) 塑料门框注塑模具主视图

图5-21(b) 塑料门框注塑模具俯视图及塑件图

1—轴销 2—支架 3—斜推杆 4—浇道镶件 5—推杆 6—动模镶件

随便看

 

离鸟网收录3541549条中英文词条,其功能与新华字典、现代汉语词典、牛津高阶英汉词典等各类中英文词典类似,基本涵盖了全部常用中英文字词句的读音、释义及用法,是语言学习和写作的有利工具。

 

Copyright © 2004-2024 vtrois.com All Rights Reserved
更新时间:2026/4/7 5:22:22