这是一种小型XD系列多级泵。主要用于吸送80℃以下清水及一般腐蚀性液体,如糖浆、酒液、饮料、鲜奶等。此泵也广泛用于酿酒、化工、交通、建筑等行业。这是一种单吸多段多级式离心泵。其流量小、扬程高、性能稳定、使用可靠。电机与泵体直连,机械密封,因而其结构紧凑、轻便耐用、维修方便。
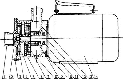
此泵结构如图4-14-31所示。主要由泵体、叶轮、导叶体及直联电机等组成。泵的进、出水口为螺纹连接。液体从泵体前端盖中心入口进入泵体后,叶轮的离心力给液体以能量,液体再进入第二级叶轮接受能量后从排液口排出。此泵主要部件叶轮及导叶体全部采用1Cr18Ni9Ti不锈钢制作。规格见表4-14-38。

图4-14-31 XD卧式多级泵结构示意图
1-前端盖 2-叶轮螺母 3-螺栓螺母 4-叶轮 5-导叶体 6-隔板 7-叶轮隔套 8-四方螺栓 9-机械密封 10-螺钉垫圈 11一抛水圈 12-泵轴 13-泵体 14-电动机
表4-14-38 XD卧式多级泵规格

注:张家港五金机械厂产品。