网站首页  词典首页


请输入您要查询的字词:

 

字词 推板
类别 中英文字词句释义及详细解析
释义

推板


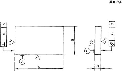
推板如图3-21和表3-16所示。

图3-21 推板

表3-16 推板(GB4169.7—84)(mm)

注 材料:45钢(GB699—88)。

技术条件:①图中标注的形位公差值按GB1184—80的附录一,t1为6级,t2为8级;②其它按GB4170—84。

标记示例:B=56mm,L=100mm,H=12.5mm的推板,推板56×100×12.5

随便看

 

离鸟网收录3541549条中英文词条,其功能与新华字典、现代汉语词典、牛津高阶英汉词典等各类中英文词典类似,基本涵盖了全部常用中英文字词句的读音、释义及用法,是语言学习和写作的有利工具。

 

Copyright © 2004-2024 vtrois.com All Rights Reserved
更新时间:2026/4/8 18:15:40