1.产品分类(表7-104)
表7-104 无压埋地排污、排水用硬聚氯乙烯管材的分类

2.外观要求
1)管材颜色应均匀一致。颜色由供需双方协商确定。
2)管材内外壁应光滑,不允许有气泡、裂纹、凹陷及分解变色线。管材端部应切割平整并应与轴线垂直。
3.规格尺寸
(1)长度
管材长度一般为4m、6m,或由供需双方协商确定,长度不允许有负偏差。
带承口的管材长度以有效长度表示。
(2)平均外径
平均外径dem应符合表7-105的规定。
表7-105 无压埋地排污、排水用硬聚氯乙烯管材的平均外径与壁厚mm

①括号内为非优选尺寸。
(3)不圆度
不圆度在生产后立即测量,应不大于0.024dn。
(4)倒角
若有倒角,倒角应与管材轴线呈15°~45°之间的夹角。
管材端部剩余壁厚应至少为emin的三分之一。
(5)壁厚
壁厚e应符合表7-105的规定,任意点最大壁厚允许达到1.2emin,但应使平均壁厚em小于或等于em,max的规定。
(6)承口和插口尺寸
1)弹性密封圈连接承口和插口尺寸。
弹性密封圈基本尺寸应符合表7-106的规定(见图7-8、图7-9或图7-10)。
当密封圈被紧密固定时,A的最小值和C的最大值应通过有效密封点(见图7-9)测量。有效密封点由生产商规定以确保足够的密封区域。

图7-8 弹性密封圈连接承口和插口示意图
ds-管材承口内径;de-管材外径;e-管材壁厚;e2-承口处壁厚;e3-密封槽处壁厚;A-承插长度;C-密封区长度;H-倒角宽度

图7-9 有效密封点测量示意图
A-承插长度;C-密封区长度

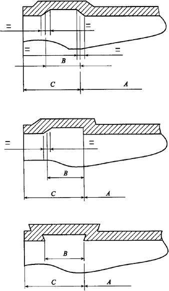
图7-10 弹性密封圈承口密封槽设计类型示意图
A-承插长度;B-密封槽宽度;C-密封区长度
表7-106 弹性密封圈连接承口和插口的基本尺寸mm

①括号内为非优选尺寸;
②倒角角度约为15°;
③允许高于C值,生产商应提供实际的L1,min,并使L1,min=Amin+C。
承口壁厚e2和e3(见图7-8,不包括承口口部)应符合表7-107的规定。
由于型芯偏移,允许壁厚e2和e3减少5%。在这种情况下,垂直相对两点壁厚的平均值应等于或大于表7-107中的规定。
表7-107 弹性密封圈连接承口壁厚mm

①括号内为非优选尺寸。
2)胶粘剂粘接型承口和插口尺寸。
胶粘剂粘接型承口和插口(见图7-11)的基本尺寸应符合表7-108的规定。
表7-108 胶粘剂粘接型承口和插口的基本尺寸mm

①承口长度测量到承口根部;
②倒角角度约为15°。

图7-11 胶粘剂粘接型承口和插口的基本尺寸
ds-管材承口内径;de-管材外径;e-管材壁厚;e2-承口处壁厚;L2-胶粘剂粘接型承口长度;H-倒角宽度
制造商应声明承口是锥形的还是平行的。若为平行或近似平行的,承口平均内径dsm应适用于承口全长。若承口为锥形的,dsm的值应为承口中径处测量,相对于管材轴线的最大锥角应为20′。
3)承口壁厚e2(见图7-11)应符合表7-108的规定。
4.物理力学性能(表7-109)
表7-109 无压埋地排污、排水用硬聚氯乙烯管材的物理力学性能要求
