网站首页  词典首页


请输入您要查询的字词:

 

字词 桁架类构件放样
类别 中英文字词句释义及详细解析
释义

桁架类构件放样


桁架类构件是指由各种型钢杆件构成的各类承重支架结构,如管道支架、建筑结构框架、输电塔架等。由于这类构件的尺寸一般较大,多由各种型钢杆件组成,且一般无须再弯曲加工,所以桁架放样一般不用展开。

但是,由于其施工图上只给出了桁架构件上各杆件轴线位置的关系和结构外形的主要尺寸,而并未完全标注构件上各杆件的长度尺寸,所以必须在放样时准确求出桁架各杆件的长度,并按构件1∶1的放样尺寸,确定装配形式,定位形式和放样平台等。

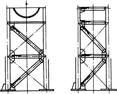
图5-62为暖气管道支架的放样施工图,其放样方法及过程如下。

图5-62 暖气管道帧≤施工

(一)放样准备

放样准备工作,主要包括准备放样平台、放样量具及工具等。放样平台通常由厚度为12mm以上的低碳钢板拼焊而成,钢板预先矫平,板接缝对齐、磨光,板下面用枕木或型钢垫起且调平,也可将厚钢板直接铺在平整地面上构成简易的钢结构平台。同时,为使放样时线型清晰,常在板面上涂带胶白粉。

(二)分析施工图样

1.了解工件用途及要求

首先必须了解工件用途及一般技术要求,以便确定放样划线精度及结构的可变动性。图5-62的管道支架放样精度较高,各中间杆和主体杆的尺寸误差较小,且各中间杆长度在图中未给出,需要在放样中由主体杆的间距等尺寸确定。

2.了解工件结构尺寸及批量

根据工件的外形尺寸、重量、材质、加工数量等概况,以及加工能力、矫正及起重设备、施工场地等选定施工方案。图5-62所示的工件为单件生产,材质为Q235管材和角钢,外形尺寸较小,重量适中,加工较容易。

3.弄清各杆件间位置关系及要求

根据各杆件之间的位置关系和尺寸要求,确定可变动与不可变动的杆件。图5-62所示工件各杆件轴线位置、地脚位置、圆弧托板的弧线位置是不可变动的。其他杆件尺寸,必要时可根据实际放样情形进行适当改动。

(三)线型放样

1.确定放样画线基准

根据图5-62所示工件要保证的几个主要尺寸要求,选择支架底平面轮廓线和任一主管件轴线作为主视图的两个放样基准线比较合适。

2.画出构件基本线型

由于图5-62所示的支架结构是以各杆件轴线位置为依据进行的设计计算和分析,各杆轴线的位置对支架的受力状态、承载能力影响很大。因此,支架结构中各杆件的轴线即为结构的基本线型应该首先画出,并为保证支架处于理想的受力状态,使杆件轴线在各节点处相交(图5-63)。其次,再画出主管、地脚板、上托板这些不可变动件的准确位置和必要的轮廓线。

图5-63 暖气管道支架主体线型放样

(四)结构放样

1.画出未定杆件和连接板

如图5-64所示,在基本线型图上画图时,应注意要画的未定杆件轴线是角钢的重心线,而不是角钢宽度的中心线;要画的连接板长边是与主杆贴合边。

图5-64 暖气管道支架主体结构放样

为提高放样工作效率,相同交叉的未定杆件,可在不同方位上仅画出一个;当杆件较长时,也可以画出节点部位杆件线型图,而杆件的中间部分省去不画。

2.确定中间杆尺寸

在画好的图样上确定、量取中间杆长度尺寸时,要保证杆件与连接板搭接焊缝长度足以满足强度要求。否则,杆件与连接板搭接长度过短时连接不牢固,但过长时也会影响杆件重心线交叉角度。

因此,当样图上出现杆件在连接板上搭接长度不正确时,应修正图样(图5-65),但应注意结构的主体立管杆件与各轴线尺寸及角度不得改动。

图5-65 修正结构尺寸

a.连接板尺寸不够 b.连接板尺寸加大

(五)制作样板及号料

暖气管道支架构件需要制作的全部样板,如图5-66所示,在制作样板时,可分不同情况采用不同画法和材料,圆弧托板、托板、衬板及底脚板等均可采用黄板纸直接画样法制作,而与中间杆端头相接的各连接板,则采用8mm厚的Q235板料,利用过渡画样法直接制作。各杆件长度样杆,可在样图上直接量取杆件长度制作。

图5-66 暖气管道支架各样板

a.圆弧托板 b.底脚助板 c.托板 d.连接板

在制作样板时,一定要以放样图为依据,切不可仿造。制作的样板、样杆上应注明杆件的件号(或名称)、数量、材质、规格及其他必要的说明,如表示出样板及样杆的上、下、左、右方位,以及焊缝长度等。

随便看

 

离鸟网收录3541549条中英文词条,其功能与新华字典、现代汉语词典、牛津高阶英汉词典等各类中英文词典类似,基本涵盖了全部常用中英文字词句的读音、释义及用法,是语言学习和写作的有利工具。

 

Copyright © 2004-2024 vtrois.com All Rights Reserved
更新时间:2026/4/7 5:33:36