网站首页  词典首页


请输入您要查询的字词:

 

字词 检定测试的主要方法
类别 中英文字词句释义及详细解析
释义

检定测试的主要方法


一个量,可以用不同的方法对其测量;而具体方法的选择,则应根据被测量的种类、量值的大小、要求的测量精度、测量过程的快慢以及进行测量的现场条件等一系列因素来考虑。尽管测量方法多种多样,但概括起来不外乎两大类,即直接测量法和间接测量法。

1.直接测量法

该法系指直接测量被测量便可得出其量值,而不必测量与被测量有函数关系的其它量的一类测量方法。不过,有时为了进行相应的修正,可能要进行必要的补充测量或计算来确定影响量的值。另外,有时需要根据计量器具的示值,通过查对图表方能得出被测量的量值。但这并没有改变测量性质,即测量方法仍然是直接的。

(1)直接比较法

直接比较法是将被测量与已知量值的同种量直接比较,从而得出被测量的量值的测量方法。对于测量者来说,除将计量器具的读数乘以必要的器具常数或分度值外,不需要进行其它运算,也无需任何附加的动作。例如,用刻度尺测量长度、用砝码和天平测量质量,以及用压力计、气压计、安培计、伏特计、瓦特计、流量计等测量相应的量,皆属直接比较法。

直接比较法的突出优点是简单、快速,主要问题是有时测量精度较差。

(2)微差法(亦称差值法)

微差法是通过测量被测量与已知同种量之间的微小差值,从而得出被测量的量值的一种测量方法。

微差法的突出特点是可以较容易地获得较高精度的测量结果。

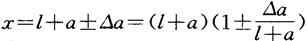
例如,用已知长度为l的量具来测量被测物体的长度x(参见图1.4-2)。设两者之间的微差为a,则x=l+a。若a的测量误差不超过Δa,则a的测量结果可表示为a±Δa,或,其中是a的相对误差。

图1.4-2 用微差法测量长度

于是,被测量x可写为

式中,便是测量x的相对误差。

由于l远大于a,故测量x的相对误差远小于测量a的相对误差,即

例如,设l=500mm,a=5mm,,则

从上例不难看出,采用微差法可以用精度较低的计量器具(上例中测量a的器具)获得较高精度的测量结果。当然,这是以标准器具(上例中的量具l)的高精度为前提的。

(3)零位法

零位法是指将被测量与已知同种量相比较,并使两者的差值为零的一种测量方法。该法须通过一定的平衡指示器(亦称零位指示器或指零仪)。当然,为使平衡指示器指零,可调整用来比较的已知量,亦可调整与被测量有已知平衡关系的其它量,或同时调整几个有关的量。也就是说,调整的量和被测量不一定同种。比如,在力学计量中,用杠杆式台秤测量某物的质量,可以用秤砣平衡,也可以改变秤杆上游砣的位置使力臂变化来平衡,或者两者同时调整以达到平衡。

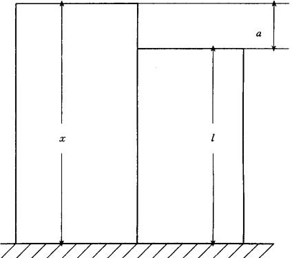
又如,在电学计量中,利用电桥来测量相应的电量,亦是零位法。图1.4-3所示的是利用电桥测量电阻的原理电路,图中,rx是被测电阻,r1、r2和r3是已知电阻,G是检流计(零位指示器),E是电源。

图1.4-3 用电桥测量电阻

该电桥的工作原理很简单。将被测电阻作为一个臂接入电桥,调节r1(或r2、r3),使检流计指零,即电桥处于平衡状态,故有

于是

(4)替代法

替代法是指用相等的已知量值的同种量来替代被测量,使得在指示装置上的效应相同的一种测量方法。

该法与零位法的主要区别在于只选择(调整)替代的已知量,而不必调整其它量。例如,用精密微调标准电阻箱来替代电阻电桥中的被测电阻(参见图1.4-3),而使检流计的指示不变。这里,电桥可平衡亦可不平衡,只要替代前后检流计的指示相同即可。

2.间接测量法

间接测量法是通过对被测量有已知函数关系的其它量的测量,从而导出被测量的一类方法。显然,间接测量是不直接测量被测量的。例如,利用测量热电偶的电动势来测量温度,通过测量液柱高度来测量压力,等等。

就测量而论,间接测量的基础仍是直接测量。

【参考文献】:

[1]国际计量局编(中国计量科学研究院情报室译),国际计量局100周年,技术标准出版社,1980。

[2]国际计量局等编(于渤等译),国际通用计量学基本名词,计量出版社,1985。

[3]中华人民共和国计量法,计量出版社,1985。

[4]NBS,Measurement Assurance Programs Part Ⅰ、Ⅱ,NBSS.P.676-Ⅰ、Ⅱ,1984、1985。

[5]鲁绍曾等,现代计量学概论,中国计量出版社,1987。

[6]王江等,现代计量测试技术,中国计量出版社,1990。

[7]王立吉,计量学概论,中国计量学院,1985。

[8]王立吉,计量学基础,中国计量出版社,1988。

[9]王立吉等,计量质量保证方案,中国计量出版社,1992。

随便看

 

离鸟网收录3541549条中英文词条,其功能与新华字典、现代汉语词典、牛津高阶英汉词典等各类中英文词典类似,基本涵盖了全部常用中英文字词句的读音、释义及用法,是语言学习和写作的有利工具。

 

Copyright © 2004-2024 vtrois.com All Rights Reserved
更新时间:2026/4/7 5:17:51