网站首页  词典首页


请输入您要查询的字词:

 

字词 点焊
类别 中英文字词句释义及详细解析
释义

点焊


1.基本原理

将工件组装成搭接接头压紧在两电极之间,利用工件焊接区的电阻热熔化金属并形成焊点。

点焊具有短时间、大电流、在压力状态下进行焊接的工艺特点。由于焊接质量好、效率高、操作简单,因而,广泛地应用于薄板冲压件、金属构件和钢筋网的焊接上,也用于家用电器、电子产品的组合件连接上。

2.点焊过程及参数

(1)点焊过程一般由预压、通电加热和冷却结晶三个阶段组成,如图7-3所示。

图7-3 基本点焊焊接循环

t1-预压阶段 t2-通电加热阶段 t3-冷却结晶阶段

预压阶段的作用是使工件在焊接处达到紧密接触。如果在电流通过开始瞬间的电极压力不够大,则接触电阻很大,极易产生初期飞溅。

通电加热阶段:包括两个过程,在通电加热的初始阶段,接触点扩大,固态金属因加热而膨胀,在焊接压力作用下金属产生塑性变形并挤向板缝,这个塑性变形形成密闭熔核的塑性环,同时使板缝变形分离,从而限制导电面积的扩大,维持焊点的电流密度不变;随着加热的进行,开始出现液态熔核并逐渐长大到要求的熔核尺寸,然后切断电流,停止加热。焊点的剖面情况见图7-4。

7-4 焊点剖面图

第三阶段为锻压阶段,又称冷却结晶阶段。切断电流后,熔核在电极压力作用下,以极快的速度冷却结晶。熔核结晶是在封闭的金属模内(塑性环)进行的,结晶不能自由收缩,电极压力可以使正在结晶的组织变得致密,而不至于产生疏松或裂纹。因此,电极压力必须在结晶完全结束后才能解除。当钢板厚度为1~8mm时,锻压时间一般为0.1~0.5s,电极压力为1.5~10kN。

(2)焊前表面准备:点焊时,电压低,电流大,阻抗小。工件表面的油污、氧化膜将直接影响接触电阻的大小、熔核的形成和电极寿命,使接头强度和生产效率降低。所以,焊前表面清理是点焊的重要工序之一。

常用的清理方法有二大类:

1)机械清理有钢丝刷清除,金刚毡轮抛光,喷沙、喷丸处理。机械清理设备简单,成本低。但生产效率低,清理质量不稳定,焊件表面易划伤,劳动条件差,清理后允许存放时间短。

2)化学清理包括去油、酸洗、钝化等,用于批量生产或氧化膜较厚的黑色金属。这种方法生产效率高、质量稳定、存放时间长。化学清理时,工件上不应有缝隙或搭接缝,以免因腐蚀液冲洗不净而受腐蚀。常用腐蚀液成分及处理规范见表7-2。

表7-2 化学清理腐蚀液成分及规范

(3)电极材料:电极材料对焊接质量及生产效率有很大的影响,一般地讲,电极材料要求耐高温,硬度高,导热率高,耐磨性好,易于加工成形,同时还要考虑价格因素。常用电极材料、性能及用途见表7-3,表7-4。

表7-3 电阻焊电极和附件的材料成分及性能

表7-4 电阻焊电极材料典型用途

(4)点焊规范:点焊规范参数主要包括焊接电流、焊接时间、电极压力、电极工作端面的形状和尺寸等。

1)焊接电流:在其他规范一定时焊接电流有一个合适的范围,过小则熔核尺寸太小,过大会产生飞溅。图7-5给出接头强度与焊接电流的关系。

图7-5 接头拉剪载荷与焊接电流的一般关系

1-板厚1.6mm以上 2-板厚1.6mm以下

2)焊接时间:它表明了焊点产热与散热的关系,其对熔核尺寸的影响规律与焊接电流相似,见图7-6。

图7-6 拉剪载荷与焊接时间的关系

1-板厚1mm 2-板厚5mm

3)电极压力:它将影响焊件的接触电阻、电流密度和塑性变形程度。在其他参数不变的条件下,增大电极压力将减慢加热速度,使焊点熔核尺寸减小而导致强度降低,如图7-7(a)所示。但当电极压力过小时,会造成焊接区塑性变形范围小或变形程度不足,影响焊点质量稳定性。因此一般认为,在增大电极压力的同时,适当加大焊接电流和焊接时间,可使焊点强度的分散性降低,焊点质量较稳定,如图7-7(b)所示。所以点焊正朝着采用大压力、大功率设备的方向发展。

图7-7 焊点拉剪力与电极压力的关系

(a)增大电极压力 (b)增大电极压力时延长焊接时间或增大电流

4)电极工作端面的形状和尺寸:电极头的形状和尺寸影响焊接时电流密度、散热效果、接触面积、焊后工件表面质量。电极端面对熔核大小的影响如图7-8所示。

图7-8 熔核尺寸与电极端面直径de的关系

曲线① 1Cr18Ni9Ti钢;

曲线② BHC2钢;板厚δ=1+1mm

电极端面形状和尺寸通常按照焊件结构形式、焊件厚度及表面质量等因素选取。常用点焊电极端头形状如图7-9所示。

图7-9 点焊电极端头形状

在点焊过程中,电极头产生压溃变形和粘损,需要不断地修锉电极头。同时规定,锥台形电极头端面尺寸的增加Δd<15%d1时,端面到水冷端距离l1的减小也要控制,低碳钢点焊l1不小于3mm,铝合金点焊l1不小于4mm。

3.常用材料的点焊

判断金属材料的点焊焊接性的重要依据为:材料的导电性和导热性,材料的高温塑性及温度范围,材料对热循环的敏感性,线膨胀系数,另外还有熔点、硬度等。

(1)低碳钢:通常指C<0.25%的钢材,这类钢材点焊焊接性较好。在板厚δ≤6mm时,采用普通工频交流点焊机,简单焊接循环即可。典型焊接规范见表7-5。

表7-5 低碳钢板点焊规范

注:存在分流时,焊接电流相应增大。

当板厚δ>6mm时,点焊有困难,需采取下列措施:

1)因焊件刚性大,需要增大电极压力。

2)电流分流加大,需要大容量焊机。

3)厚钢件伸入焊机回路,将减小焊接电流,需要增大焊接电流。

4)电极磨损加剧,需增加修锉电极次数。

(2)中碳钢和低合金钢:一般指C>0.20%的碳钢和碳当量Cey>0.30%的低合金钢。由于含碳量增加和加入合金元素,提高了碳当量。由于点焊时冷却速度很高,当低温转变时便会出现淬硬组织。同时,这些钢结晶温度宽,在熔核结晶时易形成热裂纹。这类钢的焊接需采用软规范,以减小冷却速度(表7-6),或采用焊后热处理的办法,即在第一次加热后,焊点温度降到马氏体转变温度以下,然后第二次脉冲再次加热,从而产生回火效应,以提高焊点的塑性。其规范见表7-7。

表7-6 30CrMnSiA、40CrNiMoA及45钢的单脉冲点焊规范

表7-7 30CrMnSiA、40CrNiMoA及45钢的电极间热处理双脉冲点焊规范

(3)奥氏体不锈钢:一般这类钢导电率低,导热性差,淬硬倾向小和不带磁性,因此点焊焊接性良好。一般采用小电流、短时间、普通工频交流点焊即可。但应注意,不锈钢的高温强度高,须提高电极压力。因不锈钢焊后变形大,故应注意焊接顺序,加强冷却。宜采用短时间加热规范。常用奥氏体不锈钢点焊规范见表7-8。

表7-8 不锈钢点焊的焊接条件(HB/Z78-84)

(4)高温合金:主要有镍基合金和铁基合金两类,具有高的电阻率和高温强度,故只能采用较低的电流和大电极压力。这类合金遇到硫、磷、铝等杂质,易形成低熔点共晶物,冷却时形成晶间裂纹,所以焊接前应仔细进行表面清理,同时应尽量避免重复过热。高温合金GH44、GH33点焊规范见表7-9。

表7-9 高温合金GH44、GH33点焊焊接条件

(5)镀层钢、低碳钢板可采用热浸、电镀等方法镀上一层耐腐蚀金属或合金,其点焊工艺特点如下:

1)镀锌钢:与低碳钢点焊相比,存在如下问题:因为其电流分流较大,焊点的电流密度低,接头强度波动大。镀锌层影响电极工作状况,显着降低电极寿命。同时低熔点的镀锌层,使熔核在结晶过程中产生裂纹和气孔。

为了获得合适尺寸的熔核,焊接时间应比没有镀层的低碳钢增加20%~50%,焊接电流应增加50%,电极压力增加10%~25%。常用点焊规范见表7-10。

表7-10 镀锌钢板的点焊规范(ⅡW推荐)

一般采用电极形状为锥头平面形,电极锥角为140°。电极材料选用铬钢。电极必须有强烈的水冷,水流量一般不低于9L/min。严格按规定时间清理和更换电极。

2)镀铝钢:现通常使用的有两种镀层,一种厚约0.025mm的铝硅合金镀层,用于高温达640℃。另一种厚约0.05mm的纯铝镀层。点焊前,镀铝层表面不需特殊清理,对于油污和其他杂质可用溶剂清洗或钢丝刷轻刷一遍。

焊接电流、焊接时间和电极压力等于或稍高于低碳钢的规范,电极材料与镀锌钢板的相近,不过电极的粘附问题更严重,在预定数量的焊点后,应用160目或240目氧化铝砂布进行修整。常用规范见表7-11。

表7-11 镀铝钢板的点焊规范

(6)铝合金:由于铝合金导电率、导热率大,易生成氧化膜。点焊时,存在点焊接头强度波动大,表面易过热,易形成氧化膜并产生飞溅,塑性温度区窄,易于出现缺陷。

为保证接头质量,铝合金焊接前必须严格清理,接头区焊件表面清理宽度为30~50mm,一般用化学清理具有良好的效果,清理后至施焊时的存放时间不能超过3天。

点焊时,应选用短时间,大电流的硬规范,但应采用较低的电极压力,为使凝固过程有足够的变形和压实效果,可采用阶梯式或鞍形压力曲线。因此,要求点焊时各阶段的时间必须精确控制。由于铝的导热性好,不宜采用多脉冲中规范。铝合金点焊规范见表7-12。

表7-12 铝合金的点焊规范

为了最大限度地减小分流的影响,铝合金焊点间距不应小于板厚的8倍,推荐的间距及搭边宽度见表7-13。

表7-13 铝合金点焊最小的搭边宽度、焊点间距和排间距离(mm)

电极材料,一般应选用电导率和热导率较高的CuCd合金。电极头工作端面应经常清理,加强电极的冷却作用。

(7)钛及钛合金:钛虽然易于在空气中氧化,但在电阻点焊时,熔核金属不直接与空气接触,故不必采用惰性气体保护。钛与钛合金的热物理性能与奥氏体不锈钢相似,其点焊焊接性良好,点焊规范与奥氏体不锈钢相似,钛合金点焊规范见表7-14。

表7-14 钛合金点焊规范

焊前必须去除金属表面氧化膜及杂质,多采用化学处理方法,清理后表面接触电阻降至50~60μΩ。由于接触电阻不允许超过100μΩ,所以酸洗后存放时间一般不允许超过45~50h。

4.点焊时常见问题

(1)点焊时的分流:分流使焊接区的电流密度减小,熔核变小,电流密度还会偏向分流方向,造成局部过热,甚至引起喷溅,因而造成焊点质量波动很大。

影响分流的因素主要有焊点问题、焊接顺序、焊件表面状态、电极与工件非焊接区相接触、焊件装配不良等。解决措施主要有:

1)选择合理的焊点间距。在保证强度的前提下,尽量增大焊点间距,常用金属材料推荐的点距见表7-15。

表7-15 常用金属材料推荐点距

2)严格清理工件表面。

3)对开敞性差的焊件,应采用专用电极或绝缘措施。

4)适当提高焊接电流。

(2)熔核偏移:即熔核不对称于结合面,而偏向厚板或导电、导热性差的焊件侧,使结合面上的结合尺寸小于熔核尺寸,而造成强度下降,如图7-10所示。克服熔核偏移的措施主要有:

图7-10 熔核偏移和温度分布

(a)不同厚度(δ1<δ2) (b)不同材料(ρ1<ρ2)

1)采用硬规范,可加强边缘效应对结合面集中加热的效果,并且由于焊接时间短,散热的影响相对减小。

2)采用不同的电极,包括两侧采用不同直径、不同材料的电极,使用一些特殊的电极。

3)采用凸焊的方法。

4)在薄件侧附加工艺垫片、工艺垫片用导热性差的材料制作,有降低薄件的散热、增加电流密度的作用。

5.点焊设备

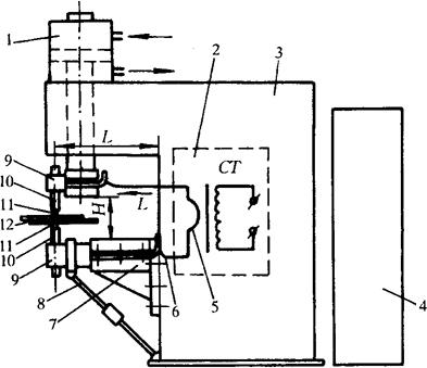
点焊设备由电源、控制设备、机械系统三个部分组成,如图7-11所示。

图7-11 点焊设备结构简图

1-加压机构 2-焊接变压器 3-机座 4-控制箱 5-次级线圈 6-柔性母线 7-支座 8-撑杆 9-机臂 10-电极握杆 11-电极 12-焊件

按照不同特征,点焊可作如下分类:

(1)按安装方式分为固定式、悬挂式。

(2)按电流波形分为低频、工频、电容储能、整流式等。

(3)按焊点数目分为单点式、双点式和多点式。

(4)按加压传动方式分为杠杆式、气压式、液压式和气-液压复合式等。

各类国产点焊机型号及技术数据见表7-16~7-19。

表7-16 固定式点焊机技术数据

表7-17 气压传动式点焊机技术数据

表7-18 悬挂式点焊机技术数据

表7-19 专用点焊机技术数据

随便看

 

离鸟网收录3541549条中英文词条,其功能与新华字典、现代汉语词典、牛津高阶英汉词典等各类中英文词典类似,基本涵盖了全部常用中英文字词句的读音、释义及用法,是语言学习和写作的有利工具。

 

Copyright © 2004-2024 vtrois.com All Rights Reserved
更新时间:2026/4/6 18:47:13