为了便于参考使用,现介绍饼干、面包、方便面食品挤压生产线布置图,详见图5-2-10、图5-2-11、图5-2-12、图5-2-13、图5-2-14。


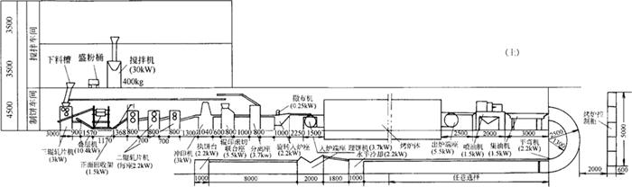
三功能平弯式饼干生产线布置图(上)


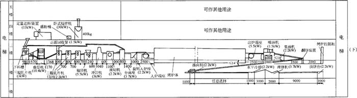
三功能翻饼式饼干生产线布置图(下)
图5-2-10 饼干生产线

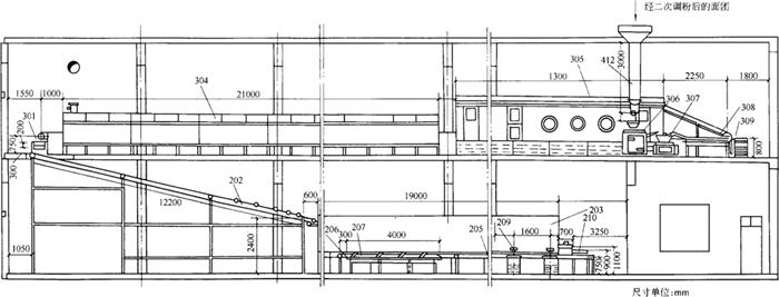
图5-2-11 面包切块、搓圆、饧发、烘烤、冷却、包装工段剖面图
202、210、301、309-输送带 203-冷却设备 205-输送带 206-挡料板 207-包装台 209-包装机 304-隧道式烤炉 305-连续饧发器 306-切块机 307-搓圆机 308-操作台 412-贮面斗(底部装控制阀)

图5-2-12 面包切块、搓圆、饧发、烘烤工段平面布置图
301-面包出炉输送带 302-面包冷却传送带(转至下一层车间面包冷却工段) 303-下滑板 304-烤炉 305-连续饧发器 306-切块机(与中间贮面斗对中) 307-搓圆机 308-操作台 309、311-输送带

图5-2-13 油炸方便面(袋、碗)生产线布置图

图5-2-14 食品挤压生产线设备流程示意图
1-锥形混合机 2-螺旋提升机 3-预处理机 4-双螺杆挤压机 5-挤出模头 6-切割装置 7-烘干(冷却)装置 8-调味系统 9-计算机控制系统