网站首页  词典首页


请输入您要查询的字词:

 

字词 电动吊篮
类别 中英文字词句释义及详细解析
释义

电动吊篮


(一)电动吊篮的构造

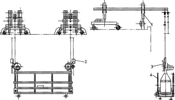
电动吊篮的构造也比较简单,主要由工作吊篮、提升机构、绳轮系统、屋面支承系统及安全锁组成。图4-33为建筑工程施工中常用的ZLD-500型电动吊篮构造示意图。

图4-33 ZLD-500型电动吊篮构造示意图

1.提升机构

提升机构是电动吊篮的动力和核心,影响整个悬吊式脚手架的起吊能力和速度快慢,其主要由电动机、制动器、减速系统及压绳系统等组成。

2.吊篮架体

吊篮架体是电动吊篮的主体,主要由底篮、栏杆、挂架和附件组成。按制作原材料不同区分,工作吊篮有两种:一种是用合金型材制成,另一种是用薄钢板冲压制成。

工作吊篮的宽度一般为0.7m,标准吊篮的长度有2.0m、2.5m和3.0m三种规格。吊篮周围设有高1.2m的护拦,靠墙面的一侧围护栏杆可以升降,以便扩大操作面。吊篮上还装有可沿建筑物墙面滚动的托轮,以使吊篮紧贴墙面,从而减少吊篮的晃动。吊篮底部设有脚轮,以利于在施工现场移动。吊篮顶部设有防护棚,以防止高空坠物伤人。此外,吊篮上还装有与建筑物拉结用的锚固器,以便于吊篮较长时间停置一处,完成比较复杂的装修作业。

3.屋面支承系统

屋面支承系统种类比较多,在建筑工程中常见的有:简单固定挑梁式、移动挑梁式、高女儿墙适用移动挑梁式和大悬臂移动挑梁式等,如图4-34所示。

图4-34 电动吊篮屋面支承系统示意图(m)

(a)简单固定挑梁式;(b)移动挑梁式;(c)高女儿墙适用移动挑梁式;(d)、(e)大悬臂移动挑梁式

4.安全锁

安全锁是电动吊篮中重要的安全装置,根据建筑工程施工的安全规程规定,载人作业的电动吊篮均应备有独立的安全绳和安全锁,以保护吊篮中操作人员不至于因吊篮意外坠落而受到伤害。

(二)安装及使用要点

1.在安装屋面支承系统时,一定要仔细检查各处连接件及紧固件是否牢固,检查悬挑梁的悬挑长度是否符合要求,检查配重码放的位置及配重的数量是否符合使用说明书中的有关规定,这些都是确保吊篮安全的重要注重事项。

2.屋面支承系统安装、检查完毕后,方可安装钢丝绳。安全钢丝绳在外侧,工作钢丝绳在里侧,两种钢丝绳一般相距15cm左右,钢丝绳应当确实固定、卡紧。

3.吊篮在施工现场附近组装完毕,经过检查完全合格后运至指定位置进行安装,然后接通电源试车。同时,由上部将工作钢丝绳和安全钢丝绳分别插入提升机构及安全锁中。工作钢丝绳一定要在提升机运行中插入。在接通电源时,一定要注意相位,使吊篮能按照正确的方向升降。

4.对于新购进或刚制作的电动吊篮组装完毕后,为保证施工中顺利运行和安全,应进行空运转试验6~8h,待一切正常后,才可开始负荷运行。

5.当电动吊篮需要停置于空中工作时,应将安全锁锁紧,待再需要移动时,才可将安全锁放松,这要形成一个良好的安全工作习惯。安全锁累计使用1000h必须进行定期检验和重新标定,以保证其安全工作。

6.在吊篮上操作的过程中,对于施工所携带的材料和施工机具,必须安置妥当、均匀布置,不得过于集中而使吊篮产生倾斜和超载。

7.电动吊篮在运行中如果发生异常响声和其他故障,必须立即停机进行认真检查,不可勉强提升或降落,在故障未彻底排除前,不得继续使用。

8.在吊篮需要下降着地之前,应当在吊篮下面相应位置垫好方木,以免下落时损坏吊篮底部的脚轮。

9.每天电动吊篮使用完毕后,应注意检查并做好以下收尾工作:

(1)将电动吊篮内的建筑垃圾杂物等清扫干净,撤出上下扶梯后,将吊篮悬挂于离地面3m处。

(2)吊篮悬空后,要使吊篮与建筑物拉结起来,以防止大风骤起刮坏吊篮和墙面。

(3)将多余的电缆线及钢丝绳存放于吊篮内,以防止丢失而影响第二天的作业。

(4)以上各项工作完成后,应注意将电源切断。

随便看

 

离鸟网收录3541549条中英文词条,其功能与新华字典、现代汉语词典、牛津高阶英汉词典等各类中英文词典类似,基本涵盖了全部常用中英文字词句的读音、释义及用法,是语言学习和写作的有利工具。

 

Copyright © 2004-2024 vtrois.com All Rights Reserved
更新时间:2026/4/8 15:52:04