1.适用范围
直流接触器主要供远距离接通与分断额定电压至440V,额定电流至1600A的直流线路之用。并适用于频繁起动,停止直流电动机及直流电动机的换向或反换制动(如用于冶金、机床等电气控制设备中)。
2.工作原理
直流接触器一般为双断点直动式结构,铁芯有E型(小容量)、U型两种型式,触头材料采用具有高抗熔焊性及耐电磨损的银合金制成,当接触器电磁线圈不通电时,弹簧的反作用力和衔铁芯的自重使主触点保持断开位置。
3.常用直流接触器产品型号及主要技术数据
常用直流接触器产品型号及主要技术数据见表1-61。
表1-61 常用真空接触器产品型号及主要技术数据

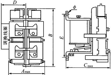
4.外形及安装尺寸
直流接触器的外形尺寸见图1-38和表1-62。

图1-38 直流接触器的外形尺寸
表1-62 直流接触器的外形尺寸/mm
