网站首页  词典首页


请输入您要查询的字词:

 

字词 空调器
类别 中英文字词句释义及详细解析
释义

空调器


(一)JSBK系列组合式空调机

1.结构特点

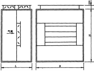
(1)该空调器由多个功能段组成。各功能段的基本模数相同,可根据实际需要,选择组合成不同功能的空调机。空气过滤段选用具有一定密度梯度的化纤无纺布,初、中效过滤器均为板式,并增加亚高效过滤段。其流程图见图9-9-35。

图9-9-35 组合式空调器

1-混合段 2-过滤段 3-中间段 4-淋水段 5-冷却段 6-加热段 7-加湿段 8-送风机段

(2)主要技术性能如下表9-9-58

表9-9-58JSBK系列组合式空调机主要技术性能

注:冷却段总散热面积数据,是按要求配KL-2型或UⅡ型换热器的散热面积。

(3)17个功能段分别为:

①送风段:接送风管,可安装密闭式多叶调节阀,分水平和顶送两种。

②中间段:即过渡段,配有检修门和照明灯。

③消音段:设有双腔,四腔微穿孔板消音器。

④初效过滤段:过滤器为平板式。

⑤中效过滤段:过滤器为平板式。

⑥亚高效过滤段:配有亚高效过滤器。

⑦冷却段:根据要求配UⅡ或KL-2型的换热器,排深分4、6、8排三种。

⑧加热段:配有GL型钢制加热器,排深分1、2、4排三种,或配制其他型号加热器。

⑨淋水段:有单级双排(对喷)、三排(二逆一顺)、单排逆喷(用于加湿)、双级双排四种。

⑩挡水段:挡水板配置在冷却段后面。

⑾送风机段:配有4-68型双进风离心式通风机,分水平送风和垂直向上送风两种形式。

⑿回风段:配有4-68型双进风离心式通风机。

⒀新风混合段:完成新风和一次回风的混合及排出部分回风。交叉式能预热新风。

⒁二次回风段:顶部安装二次回风阀门。

⒂混合(回风)段:采用单风机时为混合段,采用双风机时为回风段。

⒃加湿段:设有干蒸汽加湿器(SZS、QZS、DZS型)。

⒄拐弯段:供空调机转弯过渡用,内设导风板。

2.JSBK系列空调机各段性能参数

(1)送风段

配有密闭式多叶调节阀,阀门位置可以在端部,也可以在顶部。其性能参数见表9-9-59。

表9-9-59 送风段性能参数表

(2)JSBK板式初、中效过滤段,见图9-9-36,表9-9-60。

图9-9-36 JSBK板式初、中效过滤段

表9-9-60JSBK板式初、中效过滤段参数表

(3)亚高效段见图9-9-37,性能参数见表9-9-61。

图9-9-37 亚高效段

表9-9-61 亚高效过滤段技术性能

(4)中间段。该段用于空调机安装和检测,段长为450mm。

(5)消声段。见图9-9-38及表9-9-62。

表9-9-62 消声段性能参数表

图9-9-38 消声段

(6)送风机段。

见图9-9-39及表9-9-63

图9-9-39 送风机段

表9-9-63 送风机段性能参数表

(7)二次送风段。该段顶部设有调风阀门,其性能参数见表9-9-64。

表9-9-64 二次送风段性能参数表

(8)加热段。见图9-9-40及表9-9-65。

图9-9-40 加热段

表9-9-65 加热段性能参数表

(9)冷却、挡水段。见图9-9-41及表9-9-66。

图9-9-41 冷却、挡水段

表9-9-66 冷却、挡水段性能参数

(10)新风混合段。新风混合段的结构形式有两种:

①交叉式新风混合段,见图9-9-42及表9-9-67。

图9-9-42 交叉式新风混合段结构

表9-9-67 交叉式新风混合段性能参数

②平顶新风混合段见图9-9-43及表9-9-68。

图9-9-43 平顶新风混合段结构

表9-9-68 平顶新风混合段性能参数

(11)回风机段见图9-9-44及表9-9-69。

图9-9-44 回风机段

表9-9-69 回风机段性能参数

(12)回风混合段。回风混合段性能参数见表9-9-70。

表9-9-70 回风混合段性能参数表

(13)加湿段。该段设有干蒸气加湿器,有“手动、气动、电动”三种即:TXW-S、TXW-Q、TXW-D,见图9-9-45及表9-9-71。

图9-9-45 加湿段

表9-9-71 空调机加湿段性能参数表

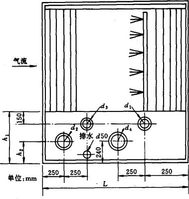
(14)淋水段。淋水段有单排、双排两种,单排淋水段见图9-9-46及表9-9-72。双排淋水段见图9-9-47及表9-9-73。

表9-9-72 单排淋水段性能参数表

图9-9-46 单排淋水段

图9-9-47 双排淋水段

表9-9-73 双排淋水段性能参数表

(15)拐弯段。结构见图9-9-48,性能参数见表9-9-74。

图9-9-48 拐弯段结构

表9-9-74 拐弯段性能参数表

(16)JSBK空调机各功能段空气阻力见表9-9-75。

表9-9-75JSBK空调机功能段阻力表 单位:Pa

注:1.初效、中效过滤器均以终阻力列出。

2.表中未列入的送风、回风、中间段、加湿、送回风机段等的阻力不大,在算出空调机总阻力后乘以1.1的系数即可。

3.生产厂家

上海市金山空调设备厂。

(二)KKA型系列组合式空调机组

1.结构特点

(1)KKA型系列组合式空调机组是我国目前较新型的产品。异型钢架结构新颖,壁板是由外壁板、内壁板与保温层等组合而成,各功能段箱体之间的橡胶密封条用825胶粘牢于一端平面上,用M8螺栓连接。

(2)各段体结构:

①回风段。回风段上部或侧面设置多叶调节阀,回风风机底部钢架延伸至本段电机下部,充分利用空间。

②回风机段,回风机段内装KKF型高效双进风节能离心风机,根据需要,电机也可在空调箱外部安装。当采用外置电机结构时,该段为整体减振。

③排风回风调节段。该段顶部设有对开多叶排风阀,段内装设对开多叶调节阀,可用手动、气动、电动进行启闭。

④粗效过滤段。分为:

(4A)粗效板式过滤段,配有平板式粗效过滤器。

(4B)粗效袋式过滤段,配有粗效袋式过滤器。

(4C)装有新风阀、回风阀及末端堵板的粗效袋式过滤段(常用于单风机系列)。

本过滤段顶部装有对开多叶新风阀,当用于双风机系统时与③段的调节阀配套,实行联动调节,使新回风按一定比例进入段体内进行混合处理。

⑤加热段。分为:

(5A)加热器后带中间室。

(5B)加热器前带中间室。

(5C)不带中间室。加热段内装有铜管套铝片加热器或钢铝复合铝轧翘片管加热器,热媒采用热水或蒸汽。

(5D)电加热段。按需要可分挡配备各种功率的电加热管。电加热器必须与风机连锁,风机不启动电加热无法启动,确保运行安全。

⑥淋水段。淋水段箱体用玻璃钢或金属、玻璃钢复合材料制作并与水槽成一整体,采用镀锌钢管作喷淋管。分为:

(6A)单级二排淋水段(回水箱外侧安装)。

(6B)单级二排淋水段。

(6C)单级三排淋水段。

(6D)双级四排淋水段。

淋水段内的前挡水板(分风板),后挡水板有塑料一次成型(维氏软化温度87.50℃);铝合金热挤压成型(耐高温300℃);玻璃钢挡水板;ABS塑料挡水板(耐高温106℃)。

挡水板过水量低于国家标准,挡水效果好,阻力小。采用FL喷嘴,热交换效率高,雾化效果好。回水箱外侧安装时更换滤网不影响运行,观察水质与检修较方便。

⑦表冷段。分为:

(7A)带中间室。

(7B)不带中间室。

表冷段内装有铜管套铜片或铜管套铝片,双翻边、高效、节能、强化传热表冷器、铜铝复合铝轧翅片管表冷器。表冷器后装有特制的挡水板,底槽装有冷凝水排水管。本段当用于粉尘较多的卷烟厂时,还可配套安装清洗装置,以确保传热效果,延长表冷器使用寿命。

⑧二次回风段。该段顶部可根据设计要求装(或不装)对开多叶回风阀,送风风机底部钢架延伸至本段电机下部,充分利用空间。

⑨送风风机段。送风风机段内装有KKF型高效节能双进风离心风机。有良好的减振效果。电动机亦可装在空调箱外,该段整体减振。为此与相邻段之间应配套柔性接口(长度一般不大于120mm)。

⑩中效过滤段。中效过滤段内装有无纺布中效滤袋,每只过滤袋由8只小袋组成。根据送风阀安装的位置和方向不同分为:水平方向安装或垂直方向安装。

⑾回风消声段。该段上部或侧面装设对开多叶回风阀,并配有柔性软接口,内装片式消声器。消声器有阻性与抗性两种。

⑿送风消声段。内部装有片式消声器,按一定模数组合而成。

⒀加湿段。该段内装设干蒸气加湿器供系统内空气加湿使用,亦可按需要选配超声波加湿器,离心加湿器或其他型式的加湿器。

⒁中间段。为检修方便和系统配套设单独中间段。

⒂送风段。在送风机段以后可另加本段,有利于检修。根据门及送风阀安装位置不同分为:

(15A)风阀在顶部。

(15B)风阀在侧面。

⒃水平拐弯段。

当机房长度受到限制时,机组可拐弯安装,段内设导风板。亦可按需要制作成消声拐弯段。

⒄垂直拐弯段。当机房有足够的空间而长度(占地面积)受到限制时,可垂直向上送风,经拐弯段后再联接二次加热段,送风消声段或中效过滤段等。

2.主要技术参数

见表9-9-76。

表9-9-76KKA型空调机主要技术参数

额定条件:1.表冷器6排进风干球温度27℃,湿球温度19.5℃,冷水初温7℃,水温差5℃。

2.加热器双排,进风温度21℃热媒为0.2MPa饱和蒸汽。

3.生产厂家

南通昆仑空调工业公司。

(三)雅士柜式空调器

1.结构特点

(1)该空调器主要由箱体、混合段、过滤段、中间段、表冷段、加热加湿段、风机段等组成。其外形见图9-9-49。

图9-9-49雅士空调机外形图

风量:80000m3/h;风压:1.5kPa;风机功率:55kW;加热量:247kW;加湿量:420kg/h;冷负量:419kW;集水管:Φ100mm;蒸汽压力:0.3MPa;蒸汽盘管口径:Φ32mm;

(1)混合段;(2)高效滤芯式过滤段;(3)中间段;(4)表冷段;(5)二次回风段;(6)加热/干蒸气加湿段;(7)风机段

(2)箱体结构可分为:

单层结构(标准型),外壳保温。

双层结构(供选型),外壳中层为保温材料。

消声双面结构(供选型),内壳能将空调器的噪音降低。

(3)混合段通过新风及回风之阀门来控制风量,而控制可分为自动控制或手动控制,见图9-9-54。

(4)过滤段一般为25mm及50mm厚之一次过滤(铝网或尼龙网式滤网),二次过滤一般为中效过滤或高效过滤,分别为300mm或600mm厚之高效能过滤网,还有回转式过滤网及滤筒式过滤系统,见图9-9-50。

图9-9-50 过滤段

(5)加湿段一般为蒸汽加湿,按照环境之别而做不同的设计,见图9-9-52。

图9-9-52 加湿段

(6)风量调节段见图9-9-53。

图9-9-53 风量调节段

(7)热交换见图9-9-51。

图9-9-51 热交换段

2.主要技术参数

主要技术参数见1290页表9-9-78。

表9-9-78雅士空调主要技术参数表(AAⅢⅡⅤ 01~185/D)

注:CMM表示m3/min,FPM为每米鳞片数,kW为冷量,L/min为水流量。

3.生产厂

雅±国际空调有限公司,永通冷气工程(中国)有限公司。

随便看

 

离鸟网收录3541549条中英文词条,其功能与新华字典、现代汉语词典、牛津高阶英汉词典等各类中英文词典类似,基本涵盖了全部常用中英文字词句的读音、释义及用法,是语言学习和写作的有利工具。

 

Copyright © 2004-2024 vtrois.com All Rights Reserved
更新时间:2026/4/8 12:06:00