网站首页  词典首页


请输入您要查询的字词:

 

字词 线槽敷设
类别 中英文字词句释义及详细解析
释义

线槽敷设


线槽和线管都是工厂随电梯发货的,有的时候数量有限,所以敷设之前要计算好敷设的路线,不要浪费。

线槽内的导线总面积不能大于线槽净面积的60%。线槽选用规格计算公式为:

导线条数×导线截面积(包括绝缘皮截面积)/线槽净面积≤60%

如果所有线槽的高度等于H,由于线槽面积≈线槽宽×线槽高,则线槽的最小宽度为:

导线条数×导线截面积/60%×H

所以,所选线槽的高度和宽度不能小于上面计算的值。

机房线槽应该使用厚度不少于1.5mm板材的线槽。如果是地面敷设,则要注意固定、稳固,并且要有警惕标志,防止绊脚。

机房线槽和线管的敷设可以参考图11.2-1。

图11.2-1 机房布线示意

在线槽内布线时,要注意动力线与信号线分开敷设。如果动力线必须要与其在同一线槽内敷设,则要求动力线在金属线管内。一般要求动力线的敷设与信号线路的敷设分开,并且不允许平行敷设,而应该交叉敷设,那样可以减少很多干扰。

线槽弯角和连接工艺如图11.2-2~4所示。所有的连接螺栓必须由线槽内往外穿,然后用螺母紧固。

图11.2-2 线槽连接示意

图11.2-3 线槽拐角安装示意

图11.2-4 线槽转角安装示意

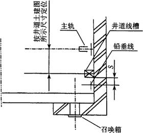
井道内线槽应该敷设在轿厢导轨与厅门之间靠近外呼装置的井道壁上。在顶层楼板下紧贴墙壁处放一条铅垂线,作为安装线槽的垂直定位依据,并按照井道土建布置图所示尺寸进行定位安装,如图11.2-5所示。井道线槽最下端距离底坑地面距离应该在400~500mm,线槽的底端应用底坑检修箱封闭,封闭方法如图11.2-6所示操作。

图11.2-5 井道线槽安装位置示意

图11.2-6 线槽末端封闭示意

在固定和连接线槽前,应该注意线槽对应各电器部件引线位置开孔,开孔应使用合适的开孔器,开孔后必须安装橡胶衬套,用以保护引线。

当井道高度超过30m时,每隔30m要如图11.2-7所示安装一个吊线装置,将导线固定,以防止导线因自重而断裂。

图11.2-7 井道线槽吊线示意

随便看

 

离鸟网收录3541549条中英文词条,其功能与新华字典、现代汉语词典、牛津高阶英汉词典等各类中英文词典类似,基本涵盖了全部常用中英文字词句的读音、释义及用法,是语言学习和写作的有利工具。

 

Copyright © 2004-2024 vtrois.com All Rights Reserved
更新时间:2026/4/8 9:46:29