(一)用途与特点
单封头、双滚轮式自动封罐设备适用于圆柱形罐的封盖。从进罐、配罐、封罐到出罐全部自动操作。卷边封罐时,罐身不动,由机头绕罐旋转进行卷封。
(二)结构与工作原理
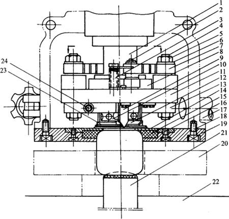
自动封罐机由传动机构、进罐机构、配盖机构和封罐机构等组成,见图4-7-7所示。其工作原理与真空封罐机类似。

图4-7-7 自动封罐机
1-凸轮套 2-压轮 3-复位弹簧 4-杠杆轴 5-杠杆轴螺帽 6-轴垫 7-弹簧臂 8-工作凸轮 9-导正爪 10-偏心滚轮轴 11-机头盘 12-卡口 13-曲臂 14-压橡胶钢盘 15-泡沫橡胶圈 16-螺栓 17-真空管道 18-密闭螺栓 19-密封盘 20-星形拨轮 21-橡胶下托盘 22-机座平台 23-滚轮 24-锁紧螺栓
(三)主要技术参数

注:南京轻工业机械厂、广东轻工业机械厂、合肥轻工业机械厂制造。