网站首页  词典首页


请输入您要查询的字词:

 

字词 苇片料仓
类别 中英文字词句释义及详细解析
释义

苇片料仓


1.闸板式苇片料仓

其结构型式见图6-2-86,主要技术特征见表6-2-47。

图6-2-86 闸板式苇片料仓

1-料仓 2-电动葫芦 3-闸门

表6-2-47 闸板式苇片料仓的技术特征

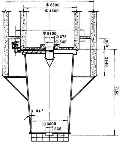
2.倒圆锥形苇末料仓

其结构形式见图6-2-87,主要技术特征见表6-2-48。

图6-2-87 倒圆锥形苇末料仓

表6-2-48 倒圆锥形苇末料仓技术特征

表6-2-49 几种料仓的规格、结构特征和配套设备

随便看

 

离鸟网收录3541549条中英文词条,其功能与新华字典、现代汉语词典、牛津高阶英汉词典等各类中英文词典类似,基本涵盖了全部常用中英文字词句的读音、释义及用法,是语言学习和写作的有利工具。

 

Copyright © 2004-2024 vtrois.com All Rights Reserved
更新时间:2026/5/27 16:27:42