网站首页  词典首页


请输入您要查询的字词:

 

字词 草片仓
类别 中英文字词句释义及详细解析
释义

草片仓


1.链刮板出料的草片活底料仓

表6-2-45 草片活底料仓技术特征

注:轻工部上海设计院资料

2.往复振动料仓

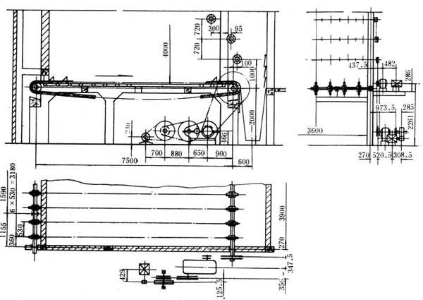
图6-2-81 日产20~30t浆的草片活底料仓

图6-2-82 往复振动料仓

1-拨料辊 2-振动板簧 3-振动装置 4-仓体 5-皮带刮板输送机

表6-2-46 往复振动料仓技术特征

3.往复螺旋出料料仓

图6-2-83 往复螺旋出料料仓

a-单向出料 b-双向出料 c-散堆草片出料

螺旋呈锥形,可使整个料仓底部均匀出料。也可选用直径不变螺旋,整根螺旋贯穿料仓,底两端有支承座,如同桥吊,出料螺旋,可从一端走向另一端,自由往返。

料仓底部没有很大收缩,料仓侧壁垂直或仅有一点倾斜,原料不易“架桥”。

应用面广,即可作木片仓,又可作草片仓。

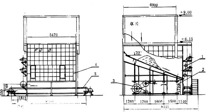
4.耙钉活底料仓

是比较单的倒锥体料仓,固定在钢丝绳上的圆锥形耙钉不停地往复运动,按先进先出的方式,从料仓底部耙入胶带运输机,由于物料在仓内不停的扰动,因而可防止草类料片“架桥”。

图6-2-84 倒锥型料仓

1-来自备料工段的皮带输送机 2-装料皮带输送机 3-倒锥型料仓 4-卸料螺旋 5-仓底卸料皮带输送机 6-至蒸煮工段的皮带输送机

随便看

 

离鸟网收录3541549条中英文词条,其功能与新华字典、现代汉语词典、牛津高阶英汉词典等各类中英文词典类似,基本涵盖了全部常用中英文字词句的读音、释义及用法,是语言学习和写作的有利工具。

 

Copyright © 2004-2024 vtrois.com All Rights Reserved
更新时间:2026/4/9 15:36:52