网站首页  词典首页


请输入您要查询的字词:

 

字词 辊压法烟草薄片设备
类别 中英文字词句释义及详细解析
释义

辊压法烟草薄片设备


(一)LB型辊压法烟草薄片设备

1.结构特点

LB型辊压法烟草薄片设备主要由原料除杂装置、粉碎机、配比混合系统、辊压成型机、烘干机及分切装置等组成,见图9-6-1所示。其平面布局可以根据建筑条件调整。

图9-6-1 LB13型辊压法烟草薄片设备

1-斗式喂料机 2-旋振筛 3-风送系统 4-物料分离器 5-除尘器 6-烟梗定量器 7-烟末定量器 8-CMC定量器 9-物料输送带 10-粉碎机 11-立式螺旋输送器 12-贮料罐 13-垂直螺旋输送器 14-粉料电子秤 15-液料电子秤 16-干液料混合装置 17-液料制备系统 18-混合配比构架 19-双辊捏合机 20-一辊压机 21-二辊压机 22-三辊压机 23-热辐射干燥器 24-二压输送带 25-成丝机 26-主控台 27-控制柜 28-控制柜

2.主要技术参数

LB型几种主要国产辊压法烟草薄片设备的技术参数见表9-6-1。

表9-6-1 几种辊压法烟草薄片设备主要技术参数

3.设备组成与生产厂家见表9-6-2。

表9-6-2 设备组成与生产厂家

(二)BY2型粉碎系统及QWJ型粉碎设备

1.结构特点

(1)QWJ型粉碎机用于粉碎烟末和梗签,主要由机壳、机架、喂料部件、粉碎部件、传动部件等组成,见图9-6-2所示。

图9-6-2 QWJ型粉碎机结构示意图

1-机架 2-粉碎部件 3-分级轮 4-机壳 5-出料管 6-喂料部件 7-传动部件

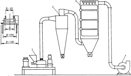
(2)BY2型粉碎系统由QWJ型粉碎机与旋风落料器、除尘器及风机组成,见图9-6-3所示。QWJ型粉碎机具有粒度分选功能,调节抽风量和分级轮转速,可改变粉碎后物料的粒度和产量。

图9-6-3 BY2型粉碎系统简图

1-粉碎机 2-旋风落料器 3-除尘器 4-风机

2.主要技术参数

见表9-6-3。

表9-6-3QWJ型粉碎机主要技术参数

3.外形尺寸

见表9-6-4。

表9-6-4 粉碎机外形尺寸

4.生产厂家

见表9-6-5。

表9-6-5BY2型粉碎系统生产厂家

(三)BY6型配比混合系统

1.结构特点

(1)BY6型配比混合系统由液料制备系统、粉料给料器、液料计量泵、干液料混合装置、双辊捏合机等组成。

(2)干液料混合装置为批量间歇式设备。由罐体、高速转动的混合叶片、进、排料机构等组成,见图9-6-4所示。

图9-6-4 干液料混合器结构简图

1-排料机构 2-罐体 3-电机 4-混合叶片

(3)双辊捏合机由机架、左右螺旋叶片、进出料口等组成,见图9-6-5所示。捏合槽的有效长度≥1.5m,混合螺旋叶片的直径D决定捏合槽的宽度B,B=(2D+10)mm。叶片的螺旋角为35°~55°。螺旋叶片轴的转速可调节。

图9-6-5 双辊捏合机结构简图

1-料斗 2-调节板 3-螺旋叶片 4-机架#

2.主要技术参数

见表9-6-6、表9-6-7。

表9-6-6 干液料混合器主要技术参数

表9-6-7 双辊捏合机主要技术参数

3.生产厂家

见表9-6-8。

表9-6-8BY6型配比混合系统生产厂家

(四)BY1型辊压干燥系统

1.结构特点

(1)辊压干燥系统由2~3台辊压机和烘干机等组成。

(2)辊压机主要由机架、传动系统、压辊、料斗和铲刀等组成,见图9-6-6所示。辊压机可以两台叠在一起使用。

图9-6-6 辊压机结构示意图

1-机架 2-活动辊 3-料斗 4-铲刀 5-固定辊 6-螺旋调节盘

(3)辊压机的-对压辊相对旋转,转速不同。两辊之间的间隙可以调节,以调整薄片的厚度。压辊筒体为空腔,有水冷装置。压辊具有较大的刚度、很高的表面硬度、光洁度和尺寸精度,压辊表面径向跳动≤0.01mm,耐腐性腐蚀。

(4)辊压机的铲刀可采用“硬刀”或“软刀”,铲刀刃口须平直。与压辊表面密切贴合,铲刀与压辊切面的夹角为16°~24°。

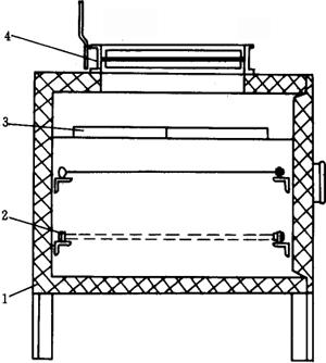
(5)烘干机主要由箱体、传送网带、加热装置及排潮系统等组成,见图9-6-7、图9-6-8所示。箱体外壳为保温层,侧面有保温门。加热装置一般采用远红外电热辐射板或辐射管,位于传送网带上方向下辐射。传送网带为不锈钢丝网。

图9-6-7 烘干机结构断面示意图

1-箱体 2-网带 3-电热板 4-排潮阀

图9-6-8 烘干机外形示意图

2.主要技术参数

见表9-6-9、表9-6-10。

表9-6-9 辊压机主要技术参数

表9-6-10 烘干机主要技术参数

3.生产厂家

见表9-6-11。

表9-6-11BC1型辊压干燥系统生产厂家

(五)BH2型薄片分切、成丝机

1.结构特点

(1)薄片分切机由机架、导向板、纵向分切圆盘刀、横向切断的滚刀及固定刀等组成,见图9-6-9所示。圆盘刀片间距按成品尺寸规格调整,横向切断的固定刀刃呈直线,滚刀刃呈螺旋线,滚刀可轴向调整。

图9-6-9 薄片分切机结构简图

1-导向板 2-圆盘刀 3-滚刀 4-固定刀 5-机架

(2)薄片成丝机主要由一对成丝刀辊、切断刀、机架和传动部件组成。成丝刀辊将连续薄片挤切成丝,横切刀将长丝切断,制成符合规格要求的薄片丝。

2.主要技术参数

见表9-6-12、表9-6-13。

表9-6-12 薄片分切机主要技术参数

表9-6-13 薄片成丝机主要技术参数

3.生产厂家

见表9-6-14。

表9-6-14BH2型薄片成丝机生产厂家

随便看

 

离鸟网收录3541549条中英文词条,其功能与新华字典、现代汉语词典、牛津高阶英汉词典等各类中英文词典类似,基本涵盖了全部常用中英文字词句的读音、释义及用法,是语言学习和写作的有利工具。

 

Copyright © 2004-2024 vtrois.com All Rights Reserved
更新时间:2026/4/8 11:37:34