网站首页  词典首页


请输入您要查询的字词:

 

字词 钢骨混凝土结构的施工方法
类别 中英文字词句释义及详细解析
释义

钢骨混凝土结构的施工方法


钢骨混凝土结构的施工是比较复杂的,为便于说明施工方法,现以某地区邮电信息枢纽大厦工程为例,比较详细地介绍钢骨混凝土大梁的施工过程和方法。

某地区邮电信息枢纽大厦裙楼中部6、7、8、9轴线的F列和J列柱位有0.55m×1.00mm型钢柱8根,并分别在4层、5层、9层(标高分别为13.87m、19.17m、39.17m)的F列和J列之间设有24m跨度的钢骨混凝土大梁。梁中设有0.5m×1.5m的“工”字形型钢梁,4层楼板共设有1.0m×1.8m、跨度为24m的钢骨混凝土大梁4根;柱间的净空为22.65m。每根大梁混凝土量为41m3、耗钢筋量8.5t;4根大梁共计混凝土量164m3、钢筋34t。钢骨大梁在梁中H、G列上设有尺寸600mm×600mm的柱子,其余与4层楼层相同。

(一)型钢梁的安装方法

型钢梁均为“工”字形型钢断面,上下翼缘板厚60mm,中间腹板厚40mm。型钢梁每米重为900kg,型钢梁的总重为254t,连同安装结点附加构件在内,总重量约为260t。型钢梁全部在专业加工厂按照设计图纸分段制作,分段运到施工工地,在现场用东区H3/36B型塔吊进行安装。型钢梁梁段的最大长度为9.7m。由于型钢梁设计长度超出原料板材长度,总重量也超过塔吊的起重能力,因此必须在加工车间分段加工制作,在现场分段吊装和拼装,各段之间的拼装采用“X”型焊缝。

为了满足分段安装的需要,需设置临时钢柱予以支承。临时钢柱高8050mm,用角钢组合焊接,配合4根钢梁逐榀进行安装,在4个轴线间周转使用。临时柱顶支座不拆除,最后浇筑在小柱端部混凝土内。

型钢梁安装由西向东进行,对于第一段是悬臂安装,除了在梁底靠近端头梁柱间设安装支承结点外,并在梁顶端头梁柱间设吊挂结点。

型钢大梁拼装焊接完毕以后,拆除临时立柱,土建施工钢筋混凝土大梁,此时型钢大梁已形成24m的跨度,并且不可避免地将承担部分工程的施工荷载。为了确保型钢大梁的稳定,在钢筋混凝土大梁开始施工以前,应全部完成下部楼层型钢梁及相应型钢柱的安装施工,形成组合框架的构造形式。

(二)模板支撑系统

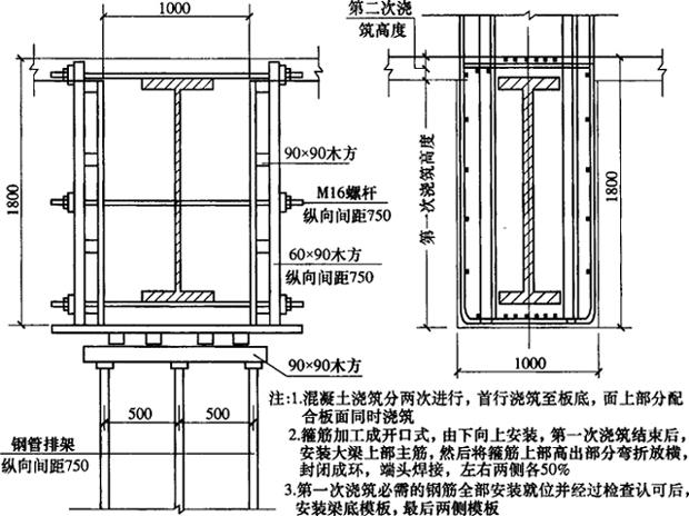
模板支撑系统,拟采用钢管架支撑将施工荷载直接传到首层楼板。由于本工程大梁所在位置的下方,3层是大空洞,必须从2层楼板开始架设大梁底部的模板支撑。支撑用3根Φ48mm×3.5mm的钢管组成宽度为1m的排架。排架沿梁轴线按750mm间距纵向布置,与模板木方的布置相互协调,水平横杆间距1m,并设置剪刀撑,整个支撑体系与楼层内满堂脚手架联为一体,以加强整体的稳定。排架底部用60mm×90mm木方沿纵长方向垫底,以保证用均布荷载方式向下方传递荷载。

(三)钢筋工程的施工

在钢骨混凝土大梁施工时,应先进行绑扎钢筋工作,后安装底部模板和两侧模板。由于型钢梁已经安装就位,底部钢筋的安装作业必须在型钢梁下面进行,所以底部模板的安装只能推迟到钢筋就位之后。

在安装钢筋时,可利用已经安装就位的型钢梁架设扁担式钢筋支承架,其具体做法是:用直径28mm的钢筋作上下钢筋扁担。上扁担焊接固定在型钢梁的上翼缘,并用斜撑与型钢梁腹板焊接;下扁担悬挂在中心距梁底50mm的高度,通过两个吊环上挂并固定在上扁担的两头。

扁担式钢筋支承沿大梁纵向每8m设置3组。在支承纵向受力钢筋的同时,并控制大梁宽度尺寸和负责侧模的定位。为此,支承架的安装就位,必须按照大梁轴线对中就位。待梁底钢筋全部安装就位后,由下向上逐一穿开口式箍筋。

梁底和梁顶纵向受力钢筋在两端头要进行处理,处理的具体方法是:通过焊接角钢和钢板与型钢柱连接。该角钢和钢板在支承和焊接大梁上下主受力钢筋的同时,还需要解决主筋垂直相交和通过的问题。为此,在柱筋穿过处布置直径为36mm的钻机,钻孔中心间距为75mm,从孔内穿过直径28mm的主筋,两孔之间焊接直径为36mm的梁主筋,垂直相交,纵横紧靠,基本上没有间隙。

焊接的角钢和钢板负责保证梁钢筋和柱钢筋的交错和严格的尺寸标高定位,作用十分关键。其加工和在柱梁翼板上的安装焊接,必须高度准确,如果出现偏差,将给梁柱的安装就位带来很大困难。

由于柱筋在穿过焊接角钢和钢板的同时,也将要穿过型钢梁的上、下翼缘,因此,在上、下翼缘板的相应位置应布置相同的直径36mm钻孔。

由于柱主筋必须穿孔就位,因此,必须先在型钢柱、梁焊接角钢和连接钢板,然后由上向下穿孔安放钢筋。柱主筋焊接接头的位置宜布置在楼层的第三层。

(四)模板工程的施工

第一次浇筑混凝土所需钢筋全部安装就位后,便可安装底部的模板,最后安装两侧模板。底部模板一般可采用七层的胶合板,板下纵向布置90mm×90mm木方4根,再下面是90mm×90mm的横木方。横木方间距为750mm,直接与底部钢管排架连接。

侧模也可采用七层的胶合板,纵向用4根90mm×90mm,竖向用2根60mm×90mm木方,间距为750mm。设M16对拉螺栓,每组3根,上下两排分别布置在型钢梁上翼缘顶面以上和下翼缘底面以下,中间一排穿过型钢梁腹板,为此,需要在型钢梁腹板中部与对拉螺杆对应处设直径为24mm的钻孔。对拉螺杆长1.6m,用黑铁皮管作为定距套管。螺杆沿大梁轴线纵向布置,间距750mm。模板安装及钢筋绑扎做法如图12-13所示。

图12-13 大梁模板、钢筋施工剖面图

(五)混凝土工程施工

混凝土浇筑应分两次进行,第一次浇筑到板底,浇筑高度为1650mm,第二次配合楼板浇筑,浇筑高度为150mm。

按照正常做法,全部钢筋就位完毕以后,支模并一次浇筑全部混凝土。由于钢筋太密,将难以保证灌洼和振捣作业的质量。为此,按板底标高划分上下两段先后浇筑。大梁第一次浇筑高度,每一根梁的混凝土量为38m3。混凝土浇筑应当连续进行,不得留设施工缝。由于大梁纵向受力主筋太稠密,净间距仅有30~35mm,在型钢梁底板以下的混凝土宜采用细石混凝土。

在第一次浇筑混凝土以前,上部面筋先不安装就位,全部箍筋做成开口式,加工制作预留长度,预留长度部分向上外伸,第一次浇筑完毕以后,再安装面部受力主筋,然后将向上外伸的箍筋预留部分向下90°弯折就位,使之形成封闭的箍筋,并按各50%的比例在左右两肩作焊接接头。最后配合楼板混凝土进行浇筑,浇筑高度为余下的大梁第二次混凝土。

钢骨大梁混凝土浇筑必须连续作业,并按要求分层进行,每层高度控制在300~500mm,每层间隔时间不得超过1.5~2h。混凝土振捣必须到位、密实,不得出现漏浆。混凝土浇筑成型后,及时覆盖草袋,并洒水养护,24h后适当松动一下大梁侧模,确保侧向的养护效果,混凝土养护时间一般不得少于14d。

随便看

 

离鸟网收录3541549条中英文词条,其功能与新华字典、现代汉语词典、牛津高阶英汉词典等各类中英文词典类似,基本涵盖了全部常用中英文字词句的读音、释义及用法,是语言学习和写作的有利工具。

 

Copyright © 2004-2024 vtrois.com All Rights Reserved
更新时间:2026/4/7 14:44:06