网站首页  词典首页


请输入您要查询的字词:

 

字词 集尘装置
类别 中英文字词句释义及详细解析
释义

集尘装置


3,1.1 集尘装置的设计原则

(1)顺序

①准确掌握尘源地点、方向、粉尘性质以及混入气体的性质。

②调查有关的法规。例如,劳动安全卫生法、公害方面的法律、地方条例、建筑标准法等。

③选择控制方法并进行计算,了解吸尘罩与操作的关系,设计特殊吸尘罩等。

④选择集尘方式并决定后处理方法。

⑤决定集尘装置的安装地点和管道路线。

⑥计算各部分性能,选定排风机和电动机。

⑦计划组装安全装置。

⑧办理有关手续。

⑨计划调整和预算。

(2)吸尘罩的设计

决定集尘装置处理风量的要素。

①控制风速。根据粉尘的性质和排放情况、吸尘罩的型式和安装位置、干扰气流的状态以及法规等因素来考虑并决定控制风速。

②吸尘罩的设计。在充分考虑操作的基础上设计吸尘罩,原则上是套式,如果是外加式,要安装在尘源的最近处。

③经济因素。根据处理风量、压力损失、装置规模、操作方法等因素的相互关系,进行经济核算。

④根据吸尘罩的设计决定处理风量。根据操作方法、粉尘污染程度以及吸尘罩的条件,首先决定控制风速,然后决定处理风量。因此,不可能有事先决定了外形和尺寸的标准吸尘罩。根本不考虑吸尘罩和粉尘状况,只讨论集尘装置本身的问题是没有意义的。

(3)选定集尘方式要考虑的因素

①粉尘性质。

②粒度(粒度分布)、粉尘浓度。

③密度(真密度、表观密度)

④休止角以及粘着性。

⑤亲水性或疏水性。

⑥腐蚀性、磨损性。

⑦起火、爆炸性。

⑧温度。

⑨混入气体的种类。

⑩根据粉尘情况选定集尘方式。如果集尘装置的选择出现错误,就不能充分发挥其作用,而且还可能出现无法运转或重建等麻烦。

(4)决定后处理方法

①指定管理集尘装置的负责人。

②了解预定收集的粉尘量。

③回收后再用或扔弃。

④用动力还是人力取出粉尘,取出的粉尘用何种方法处理。

⑤取出粉尘的周期定为多长时间。

⑥运输方式。

⑦取出粉尘的扔弃地点。

⑧与废弃物处理方法的关系。

⑨必须决定粉尘后处理的方法。安装集尘装置之前,粉尘飘浮在空气中,无法预测其产生量,所以可以不计。设置集尘装置后,会因为收集到的粉尘量之多而感到吃惊。因此,必须先决定粉尘的后处理方法和运输方法。

(5)排放浓度

无论什么样的集尘装置也达不到100%的集尘率,使处理后的排放浓度为零。集尘率可根据下式计算:

式中 η——集尘率(%);

C1——集尘装置入口粉尘浓度(g/m3N);

C2——集尘装置出口粉尘浓度(g/m3N);

C3——粉尘回收量;

Q——排气量(m3/min)。

C3=C1

3.1.2 各种集尘装置性能的比较

各种集尘装置性能的比较见表3-1。

表3-1 各种集尘装置性能的比较

正在建造的袋式过滤器如图3-1所示。

图3-1 正在建造的袋式过滤器

3.1.3 各种集尘装置的原理和结构

Ⅰ.旋风式集尘器

①特点。旋风式集尘装置很久以来就被大量采用,是一种非常有效的集尘装置。它的主要优点是结构简单,性能良好,占地面积少,在一般温度和高温下都可使用,粉尘量大的时候,效果极好。此种装置不但能集尘,还能以空气动力输送装置的终端将粉尘很方便地分离出来。它制造费用便宜,易于维修和保养。但是,这种装置不能收集微小颗粒的粉尘,压力损失较大。它虽然结构简单,但是难以从理论上进行解释分析。因此,不能简单地根据粉尘性质进行设计。如果采用吸入式(风力式),只要漏进一点点空气,就会使集尘率明显下降。

②原理和结构。使含尘气体在圆筒内旋转,其离心力将粉尘甩到外壁一侧,使其沿着旋风侧壁落下来。这时,作用于粉尘(颗粒)的离心力与重力成正比,为500~2000倍,在重力场中几乎不沉降的5微米左右的颗粒也可被捕集。

③提高集尘率的条件

1)缩小旋风集尘器的直径;

2)扩大内筒与外筒的直径比;

3)缩小入口管道的横截面积;

4)加长圆柱涡流的长度;

5)粉尘颗粒直径大、真密度大的粉尘,集尘率高。

④用途

1)粉尘颗粒一般在10微米以上时;

2)高温下不能使用纤维滤布时;

3)粉尘的真比重大时;

4)粉尘处于难以向空气中扩散的状态时;

5)粉尘的产生为间歇式(起动率极低)时。

各种旋风集尘器及其原理如图3-2、图3-3所示。

图3-2 旋风集尘器原理图

图3-3 各种旋风集尘器

⑤多个旋风集尘器。直径较小的小型旋风集尘器的临界颗粒直径越小,其处理能力反而下降,处理气体量减少。因此,在处理大量的气体时,可以将多个小型旋风集尘器并联使用,如图3-4所示。

图3-4 多个(单个)旋风集尘器并联图

回转炉所用的母子旋风集尘器如图3-6所示。其处理气体量与直径的关系如图3-5所示,处理气体量与分离颗粒临界直径的关系如图3-7所示。

图3-5 旋风集尘器处理气体量与直径关系

图3-6 回转炉用母子旋风集尘器

处理气体量:450m3/min

母旋风集尘器:2个

子旋风集尘器:9×2个

左图为全图,右图为子旋风集尘器。

图3-7 旋风集尘器处理气体量与分离颗粒临界直径的关系(常温标准)

新型的四联式除尘器如图3-8所示。旋风除尘器的直径与分离颗粒临界直径关系如图3-9所示。

图3-8 四联式旋风集尘器

图3-9 旋风集尘器直径与分离颗粒临界直径(常温标准)

旋风除尘器的内部结构和尺寸如图3-10、图3-11所示。

图3-10 多管旋风集尘器内部图

图3-11 旋风集尘器尺寸(见表3-2)

3.1.4 标准型旋风集尘器

(1)单管旋风集尘器如表3-2所示。

表3-2 单个旋风集尘器表

(2)双管旋风集尘器如表3-3所示。

表3-3 双个旋风集尘器表

3.1.5 轴流型旋风集尘器的特点

(1)比标准的切线流入型旋风集尘器体积小;

(2)可以多个并用,适于处理大风量的粉尘;

(3)可直接连接在通风管道的垂直部,适于在狭窄的地方使用;

(4)分离临界颗粒直径比切线流入型稍大。

轴流型旋风集尘器的结构与外型,如图3-12、3-13所示。

图3-12 轴流型旋风集尘器

图3-13 轴流型旋风集尘器外形

3.1.6 多管式旋风集尘器

多管式旋风集尘器的各种型号如表3-4所示。

表3-4 多管式旋风集尘器表

锅炉所用的旋风集尘器工艺图示于图3-14。

图3-14 锅炉用集尘装置工艺图

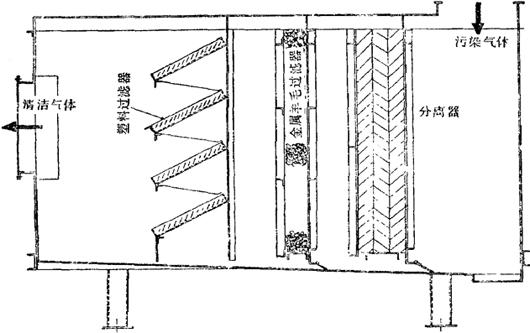
Ⅱ.袋式集尘器

①特点。这是一种应用面极广的集尘装置,可以用于要求集尘率较高的地方。其优点是尽管处理气体的粉尘浓度有变化,而最后排放浓度无变化,能够处理稍高温度的气体,几乎是万能型。它可以捕集极微小的颗粒,而且可以根据气体或粉尘的性质选择滤布的材料和编织方法,粉尘再次飞散的可能性较小。其缺点是滤布的耐热性使高温气体的处理受到限制,难以用于露点以下的场合以及吸湿性很强的粉尘。它比旋风集尘器体积大,而且压力损失变化大。

②原理与结构。用滤布过滤含尘气体,将粉尘分离出来。从力学角度看,利用了扩散、惯性碰撞、屏蔽、重力等特性。滤布材料主要有聚酯、聚酰胺、聚丙烯以及纤维性纺织布和毛毡,还可采用棉花、羊毛等天然纤维,耐热尼龙以及玻璃纤维等。滤布材料可根据气体或粉尘的性质选用。

滤布被加工成圆筒型或平面型,可以根据所需过滤面积,将几个圆筒或平面集中设在一袋室或数袋室里。吸附在滤布表面的粉尘层本身就可成为过滤膜,会随着时间的增加变厚,待达到一定程度时将其掸落。

③过滤风速。过滤风速是指通过过滤面的气流平均风速。一般来说,这个值越小,集尘率越高。但是,在同一个过滤面积上能够处理的气体量将减少。另外,如果过滤风速太大,则难以确保袋式集尘器的稳定运转。

式中 Q——处理气体量(m3/min);

A——过滤面积(m2);

V——过滤风速(cm/s)。

V一般为2.5厘米/秒,可掌握在0.5~7厘米/秒范围内,此数值是决定集尘性能及经济效益的关键。

风量、过滤风速、过滤面积的关系如图3-15所示。

图3-15 风量、过滤风速、过滤面积的关系

注:上图的使用方法,例如,求处理风量250m3/min、过滤风速1.2m/min(2cm/s)时的过滤面积。先看左侧刻度2.5的位置,将此读作250(指数x=2),然后,连结中央刻度1.2m/min点,读出与右侧刻度交叉点的数值,此时为2.08,由于指数x=2,所以得出结果:过滤面积208m2

袋式集尘器结构各异,种类繁多,仅举几例,示于图3-16、图3-17。

图3-16 袋式集尘器种类

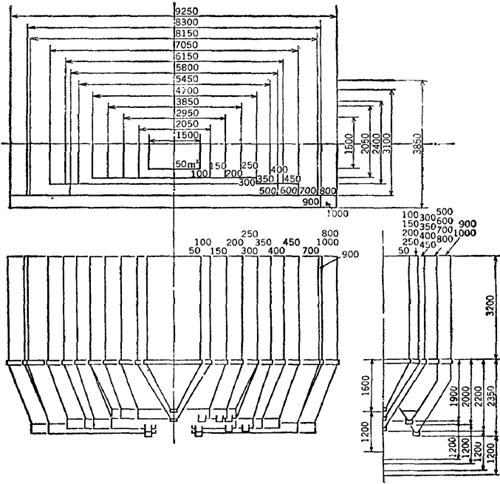
图3-17 脉冲袋式集尘器标准尺寸图(滤布:130Φ×2500l) 单位:厘米

3.1.7 适用于各类粉尘的最大过滤风速

适用于各类粉尘的最大过滤风速见表3-5。

表3-5 各类粉尘的最大过滤风速表

注:粉尘浓度,大:10~8g/m3;中:8~4g/m3;小:4~g/m3。表中◎为最好,〇为好,△为有时也可使用,×为不能使用,

集尘效率:

严格说来,集尘率(捕集效率)可分为累积集尘率和瞬间集尘率两种。累积集尘率是指在一定的时间里,捕集的粉尘重量与排出的粉尘量之比,是长时间测定样品得到的数值。瞬间集尘率表示在各个瞬间的集尘率。一般来说,瞬间集尘率表示的是本质上的数值,与粉尘负荷增加的同时,迅速接近100%。从下图可以看出,过滤风速太大,可使集尘率降低。透射率是与集尘率相反的数值,可用下式表示:

透射率=100-集尘率(%)

过滤风速与集尘效率的关系见图3-18。

图3-18 过滤风速与集尘效率

袋式除尘器如图3-19所示。其滤布性如图3-20所示。

图3-19 袋式集尘器

图3-20 滤布的特性曲线

3.1.8 袋式集尘器的寿命

袋式集尘器的寿命,如表3-6所示。

表3-6 袋式集尘器的寿命表

带有防爆安全阀的袋式集尘器如图3-21所示。

图3-21 袋式集尘器(装有防爆安全阀)

3.1.9 用于滤布的纤维类

用于滤布的纤维类,如表3-7所示。

表3-7 用于滤布的纤维类表

Ⅲ.电集尘器

①特点。在各种集尘方式中,电集尘与袋式集尘一样,性能很好,适用于捕集1微米以下的颗粒,很久以来一直被广泛应用。它的优点是适用于捕集超微颗粒,压力损失较小,运转费和维修费便宜,适用于处理高温气体,能够捕集油雾,能够湿式集尘,也可作为静电凝集器使用。其缺点是装置体积大,工作精度要求高,建设费用高,由于粉尘的电性质,使集尘率下降,故不能广泛使用,而且,还不能用于有可燃性粉尘和气体的场合。

②原理与结构。在电极间给予15000~70000伏的高电压,使放电极周围发生电晕放电。这时,产生负离子和正离子,正离子马上被中和到放电极,负离子向集尘极移动。含尘气体经过时,颗粒与离子发生冲撞,使之带电,这时电力发生作用,将粉尘捕集到集尘极。

充电形式可分为单极式和两极式。单极式适于处理较高浓度的粉尘,广泛用于工业部门。两极式可以去除低浓度的细小粉尘,因此用于空气净化。

在干式电集尘器中,对集尘率影响最大的是粉尘的比电阻,此值在103~1011欧姆·厘米时,性能最好。此值如再降低,粉尘在被集尘极吸附的同时,会失掉电荷,重新飞散。相反,电阻值高可使带电粉尘的中和速度放慢。因此,在集尘极吸附的粉尘层会发生反电离现象,致使集尘率下降。

由于它的结构对气流的阻力较小,因此压力损失比其它集尘方式少得多,为30~60毫米H2O。如果选择的材料合适,能够处理350℃的高温气体。

3.1.10 粉尘电阻值举例

粉尘电阻值,如表3-8所示。

表3-8 粉尘电阻值举例

单极式和两极式电集尘装置原理如图3-22、图3-23所示。其例如图3-24、图3-25。

图3-22 单级式电集尘装置

图3-23 两极式电集尘装置

图3-24 正在制造的电集尘装置

图3-25 电集尘器

如何决定集尘装置的大小呢?

1)根据颗粒的带电量、电场强度等条件求出颗粒移动速度。一般为0.1米/秒左右。

2)根据集尘率和颗粒移动速度求出比捕集面积。

3)求出集尘极的面积,如图3-26、图3-27所示。

图3-26 求比捕集面积参考图

图3-27 求集尘极面积参考图

3.1.11 标准电集尘装置的尺寸

标准电集尘装置的尺寸见表3-9和图3-28。

表3-9 标准电集尘装置的尺寸

图3-28 标准电集尘装置尺寸示意

Ⅳ.油雾分离装置

油雾分离集尘装置见图3-29~图3-33。

图3-29 油雾分离集尘装置

图3-30 处理机械性油雾装置的原理

图3-31 处理蒸气絮凝油雾装置的原理

图3-32 处理粘附性油雾装置的原理

图3-33 处理易蒸发油雾装置的原理

①特点。生产过程中产生油雾,污染环境,危害人体健康的事例很多。采用此种装置能够将油雾中的油回收并加以利用。它的主要优点是油可以被回收再用,既可以返回生产过程又可以用作燃料,能够防止油雾污染环境。回收的油是液体,易于处理,可用较小的压力损失进行分离。缺点是油雾产生的过程会使颗粒分布发生较大变化,利用单一系统不能作到万无一失。在蒸气絮凝过程中生成的油雾含有超微颗粒粉尘,难以将其分离出来。吸附油雾的管道如果处理不好,有可能从法兰处滴漏,污染产品或环境。

②原理与结构。如果油雾是因机械性原因使液膜破裂产生的,颗粒直径多为10微米以上,则采用弯曲板重叠分离器能够进行分离。而蒸气絮凝生成的油雾颗粒直径在1微米以下,因此需设置数极纤维充填层。捕集到的油雾变成液膜或大粒液滴流出后,基本不再飞散。油雾内混进粉尘时,可附加自动洗涤纤维充填层过滤器的装置。纤维充填层过滤器是消耗品,一般每6~12个月换一次。

压力损失因油雾种类、装置结构而异,一般为50~100毫米H2O。

对粘附性油雾,也可采用电集尘装置,但只限于不会由于电火花引起火灾的场合。

如果是易蒸发的液体,使用冷却器可以提高捕集效果。也可进一步冷却后,捕集絮凝的蒸气,但要充分掌握对象物的蒸气压力特点与蒸气浓度的关系,否则效果不好。

3.1.12 油雾分离集尘器标准尺寸

油雾分离集尘器标准尺寸见表3-10。

表3-10 油雾分离集尘器标准尺寸

Ⅴ.洗涤式集尘装置

洗涤式集尘装置如图3-34所示。

图3-34 洗涤式集尘装置

①特点。洗涤式集尘装置也称为洗涤器。它能够分离捕集水中的粉尘。由于水处理较烦琐,而且此装置只能用于特殊的场合,所以,其使用范围受局限。它的优点是既能集尘,又能吸附处理有害气体,还可处理易燃、易爆的粉尘。它适用于气体水份含量大,不可能进行干式处理的粉尘。它还能降低处理气体的温度。其缺点是必须同时采用排水和粉尘(泥渣)处理设备,在寒冷地区,冬季还需采取防冻措施,同时还必须考虑到粉尘或气体与水发生反应后,对装置本身所产生的腐蚀和危险因素。

②原理与结构。洗涤式集尘装置是用水或在水中添加了某种物质的液体洗涤含尘气体,使粉尘吸附在液滴、液膜上,再进行处理。此方法能吸附去除气体所含的有害气体成分,并进行化学中和处理。集尘原理有以下3点:即,粉尘颗粒与液滴的惯性碰撞,高浓度向低浓度扩散的效果以及絮凝作用的综合效果。

洗涤式集尘装置只是把空气中的粉尘移入水中的装置,因此,捕集到的粉尘或有害气体与水同时排出。在安装洗涤器的同时,安装排水处理装置是绝对必要的。使用的材料有:铁、不锈钢、各种塑料等。同时,还要考虑不同材料与捕集到的物质成分发生反应(腐蚀)的问题。

使用洗涤式集尘装置的条件:

1)粉尘是亲水性的;

2)水量充足且用水方便;

3)捕集到的粉尘不致因水而腐臭。

3.1.13 洗涤式集尘装置的种类

(1)文丘里洗涤器如图3-35所示。

图3-35 文丘里洗涤器

将含尘气体导入文丘里管,在管口部将流速加速至40~100米/秒。在管口部用水加压喷雾,与粉尘接触,在后半部旋风分离部分进行捕集。

其压力损失:300~1000mmH2O;气液比:0.5~1.51/m3;临界颗粒直径:1~0.5μm。

(2)充填塔如图3-36所示。

图3-36 充填塔

在塔内无规则地充填表面积为20~50mm左右的固体物,进行气液接触,分离捕集颗粒,此塔多用于气体吸收。

其压力损失:50~250mmH2O;气液比:1~31/m3;临界颗粒直径:1μm。

与充填塔类似的还有浮动床式洗涤器。其形式是塑料材料制成的球在塔内飘浮,靠球表面的水膜处理含尘气体。

(3)旋风集尘洗涤器,如图3-37所示。

图3-37 旋风集尘洗涤器

将加压水喷向旋风集尘器,清洗含尘气体。含尘气体从圆筒状本体下部一边旋转一边向上运动。还有一种是在塔的下方中央处安装多个高压喷嘴,将水喷成放射状。另外,在普通旋风集尘器上安装喷嘴的,是喷水式旋风集尘器。

其压力损失:100~200mmH2O;气液比:0.5~21/m3;临界颗粒直径:5μm。

(4)筛网架式洗涤塔,如图3-38所示。

图3-38 筛网式洗涤塔

设置数层孔径比例较小(15%~30%)的多孔板架,洗涤液从上至下流出,气体则从下往上走,经过板架上的开孔上升。此种方式多用于气体吸附。

其压力损失:30~80mmH2O;气液比:2~51/m3

(5)泡沫式洗涤器,如图3-39所示。

图3-39 泡沫式洗涤器

设置数层多孔板,水从上往下流,含尘气体经过多孔板时变成气泡,得到搅拌。水经过旁侧的导水管流入下层。此种方式与漏架式相比,经过各级气孔的气流速度较快。

其压力损失:150~200mmH2O;气液比:3~61/m3

(6)冲击式过滤器,如图3-40所示。

图3-40 冲击式过滤器

这是一种流水式洗涤器。集尘室内保持一定的水位,含尘气体以高速度经过沿水位平面设计的反S字型的水沟。这时,含尘气体与水迅速地混合,粉尘被捕集到水中。它不用水泵,只用排风机即可。其特点是用水量较少。

(7)喷淋式旋风集尘器如图3-41所示。

图3-41 喷淋式旋风集尘器

图3-42为装有洗涤式集尘装置的工厂外观。

图3-42 洗涤式集尘装置

3.1.14 标准洗涤塔的规格

标准洗涤塔的规格见表3-11。

表3-11 标准洗涤塔规格

图3-43、图3-44为洗涤式集尘装置所用泵的性能。

图3-43 洗涤式集尘装置所用泵的性能(清水,50H2)

注:图中的19 40/30 2P(2.2)

意为;序号——口径——极数——电机输出功率

图3-44 洗涤式集尘装置所用泵的性能(清水,60H2)

3.1.15 标准水洗涤过滤器规格

标准水洗涤过滤器规格见表3-12。

表3-12 标准水洗涤过滤器规格

随便看

 

离鸟网收录3541549条中英文词条,其功能与新华字典、现代汉语词典、牛津高阶英汉词典等各类中英文词典类似,基本涵盖了全部常用中英文字词句的读音、释义及用法,是语言学习和写作的有利工具。

 

Copyright © 2004-2024 vtrois.com All Rights Reserved
更新时间:2026/4/8 5:05:33