网站首页  词典首页


请输入您要查询的字词:

 

字词 饼干生产设备
类别 中英文字词句释义及详细解析
释义

饼干生产设备


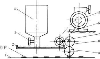
(一)定量送料装置(图3-3-1)

图3-3-1 定量送料装置

1.用途

该机可将和面机搅拌好的面团切成块头,并根据饼干成形机的吐量,自动送进所需的面团,是实现饼干生产自动化的特设机构。

2.组成

该机由切割装置和运输装置及自动控制装置等部分组成。

3.机构特点

该机采用液压驱动形式,自动化程度高。

(二)叠层机(图3-3-2)

图3-3-2 叠层机

1.用途

该机可将面团压皮。经往复运行,小车往复叠层,并将叠好层的面皮,送交成形机轧辊上进入饼干生产,是实现饼干生产自动化的设备。

2.组成

该机由压片机构、连杆往复叠层机构、运输装置等部分组成。

3.机构特点

该机叠层面皮层数不限,并配有撒酥机构,可获得更高层次的酥化与口感,是实现饼干生产自动化的关联设备。

(三)摇摆式饼干成形机

1.用途

该机是连续冲印苏打饼干、韧性饼干、酥性饼干生坯的设备,与远红外网带炉等设备相配,组成饼干自动生产线。

2.组成

该机主要由轧片机构、冲印成形机构、拣分机构(余料分离机构)及输送带机构等部分组成,见图3-3-3(a)所示。

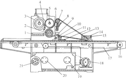
图3-3-3 摇摆式饼干机

(a)外形图

1-头道辊 2-面斗 3-回头机 4-一、二道辊 5-辊距调整手轮 6-三道辊 7-面带输送带 8-冲印成形机构 9-机架 10-拣分输送带 11-生坯输送带

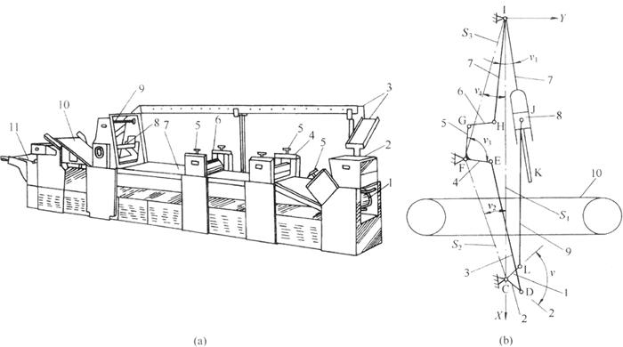
(b)冲印成形机构示意图

1-冲印曲柄 2-摇摆曲柄 3、6、9-连杆 4、5、7-摆杆 8-印模头滑块 10-面坯水平输送带

K-冲头顶点

C、D、E、F、G、H、I、J、L-连杆铰接点

3.工作原理

首先将调制好的面团引入饼干机的轧片部分,经三道轧辊辊压成规定厚度的面带,然后由输送带送至成形部分。冲印成形机构是由一组曲柄连杆机构、一组双摇杆机构及一组曲柄摇杆机构组成[见图3-3-3(b)]。工作时,印模冲印曲柄1及印模摇摆曲柄2同时转动。印模冲印曲柄1通过连杆9驱动印模滑块在摆杆7的导槽内做直线往复运动,曲柄2则借助于连杆3、6和摆杆4、5使印模摆杆7摆动,从而使印模在做直线冲印时,随输送带同步运动,完成同步摇摆冲印,把面带制成带有花纹的饼干生坯和余料。随后,生坯和余料经拣分机构分离,饼坯由输送带送出,余料则由拣分输送带返回饼干机前端的料斗内。

4.机构特点

该机是利用上下模同时做相对冲压,并以近似于帆布输送带运动的线速度同向摆动,使输送带在运动过程中连续完成冲印成形,是一种连续式的冲印成形机。

5.技术特征

(四)辊印饼干机

1.用途

该机主要用于高油脂酥性饼干的成形,更换印模后,还可以加工桃酥类糕点。

2.组成

该机主要由成形脱模机构、生坯输送带、传动系统等部分组成,见图3-3-4。

图3-3-4 辊印饼干机结构简图

1-接料盘 2-脱模辊 3-喂料辊 4-分离刮刀 5-印模辊 6-间隙调节手轮 7-张紧轮 8、15-手柄 9-手轮 10-机架 11-刮刀 12-接屑盘 13-脱膜带 14-尾座 16-输送带托辊 17-生坯输送带 18-电动机 19-减速器 20-无级变速器 21-调速手轮

3.工作原理

该机工作时,面团由料斗滑向喂料辊,随着喂料辊的旋转,被压入印模辊的印模中,并由分离刮刀将印模外多余的面料沿印模辊切线方向刮落至面屑接盘中。印模辊继续旋转,印模内的饼坯受到帆布带的吸附作用,从凹模中脱出,粘附在帆布带上,形成所需形状的饼坯。图3-3-5所示为成形脱模原理示意图。

图3-3-5 辊印成形脱膜原理

1-脱模辊 2-分离刮刀 3-喂料辊 4-料斗 5-印模辊 6-饼干生坯 7、11-脱模带 8-生坯输送带 9-刮刀 10-面屑斗 12-面料

4.机构特点

该机的印花成形、脱模等操作,由成形脱模机构的辊筒转动一次完成,不产生边角余料,省去了余料输送带,使整机结构简单、紧凑,占地面积小,操作方便。机构工作连续平稳、无冲击、振动噪声小。

5.技术特征

(五)辊切饼干成形机(图3-3-6)

图3-3-6 辊切饼干成形机

1.用途

该机广泛用于加工苏打饼干、韧性饼干、酥性饼干等,是一种在大型饼干厂广泛使用的高效饼干生产机器。

2.组成部分

该机主要由轧片机构、辊切成形机构、余料回收机构、传动系统及机架等组成。

3.工作原理

面片经压片机构压延,形成光滑、平整、连续均匀的面带,在缓冲输送带处,使面带内应力得到部分恢复后,进入辊切成形机构。双辊切成形的印花和切断分两步完成,即面带先经印花辊,轧印出花纹,随后,再经同步转动的切块辊,切出带花纹的饼干生坯,单辊切成形、印花和切断由一道成形辊完成。成形生坯由水平输送带送至烤炉,余料则经帆布提起,由回收机构送回轧片机构的前端。图3-3-7所示为辊切成形原理示意图。

图3-3-7 辊切成形原理示意图

1-定量辊 2-面带 3-脱模带 4-印辊 5-切辊 6-脱模辊 7-余料 8-生坯

4.机构特点

该机是综合了冲印饼干机与辊印饼干机的优点而发展起来的一种饼干成形机,具有广泛的适应性,速度快,效率高,振动噪声低。

5.技术特征

(六)刷蛋、乳机(图3-3-8)

图3-3-8 刷蛋、乳机示意图

1-饼坯传送带 2-液料盘 3-流量控制阀 4-液料斗 5-电动机减速器 6-辊筒传动链条 7-上料辊 8-过渡辊 9-刷料辊

1.用途

主要用于饼坯表面涂刷蛋、乳。

2.组成

该机主要由液料装置系统(液料斗、液料盘、液量控制阀)、辊筒(上料辊、过渡辊、刷料辊)及传动带等部分组成。其动力可由成形设备传入,也可单配电动机和调速器以便根据不同的产品选择涂刷速度。

3.工作原理

工作时,上料辊7将液料盘2内的液料不断传给过渡辊8,最后均匀地被传到刷料辊9表面,刷料辊与通过传送带送进的饼坯表面接触,达到涂刷蛋、乳的目的。上料辊与过渡辊一般用金属材料制成,其中心距可调,这样可以控制液料的涂刷量。刷料辊一般用软质材料制成,刷料辊与饼坯的间距也可调,以保证涂刷和输送的质量。通过调节液料斗上控制阀来调节液料的流量,保证液料盘的一定液位高度。

4.机构特点

由于辊距可调,可控制液料的涂刷量,保证涂刷与输送的速度,提高产品质量。

(七)撒糖、盐机(图3-3-9)

图3-3-9 撒糖、盐机示意图

1-落料闸门 2-料斗 3-撒布辊筒 4-辊筒驱动链条 5-电动机、减速器 6-回料刮刀 7-回收料斗 8-传送带驱动辊筒 9-饼坯传送带 10-张紧装置 11-从动辊筒

1.用途

该机是一种用来给成形后的饼坯表面撒布颗粒状的糖、盐的设备。

2.组成

该机由料斗、辊筒(撒布辊筒、传送带驱动辊筒、从动辊筒)及传送带等组成。

3.工作原理

撒布辊筒3的外表面沿轴向均匀地刻有细长槽,辊筒由传动机构带动,糖、盐等物料落进沟槽被连续均匀地撒在由饼坯传送带向前输送的饼坯表面上。闸门与撒布辊筒3的间隙可调,可以控制撒布量的大小,表面被撒布了糖或盐的饼坯即可送入烤炉烘焙。饼坯传送带9上的剩余物料则通过传送带的折回行走和刮刀的铲刮落入回收料斗,以便收集复用。饼坯传送带的动力一般与饼干成形机的传送带同步并联动。

4.机构特点

撒布辊筒外表面有细长槽,糖、盐掉入槽沟内,由于闸门与撒布辊筒的间隙可调,控制糖、盐量的大小,因而能连续均匀地将糖、盐撒布在饼坯表面上,提高产品质量。

(八)喷油机(图3-3-10)

(a)外形图

(b)原理图

图3-3-10 饼干喷油机

1-油箱 2-张紧辊筒 3-油泵 4-油压调节装置 5-变速器 6-网带驱动辊筒 7-电动机 8-机架 9-饼干输送网带 10-油雾回收装置 11-喷油电机 12-离心喷油轮 13-喷油输送管 14-电控箱 15-从动辊筒

1.用途

主要用来给烘焙出炉后的饼干表面喷涂上一层薄油雾面以提高饼干的色、香、味。

2.组成

该机由油箱、油泵、油压调节装置、离心喷油轮及输送网带等组成[见图3-3-10(a)]。

3.工作原理

工作时,经传动装置带动饼干输送网带回转,在输送网带的上、下方各并排安装有2台高速(>2000r/min)电动机,电动机轴上直接装有伞状离心喷油轮,食用油经油箱、油泵、调压分配器和开关电磁阀被送至离心喷油轮的中心而获得旋转运动。因离心力的作用,成薄膜状的油液以不断增长的速度向喷油轮边缘移动而喷出细的雾状,达到给饼干的面、底表面喷上油雾的目的。喷油层饼干蒸发的油雾通过油雾回收装置中的离心式风机吸回,再喷到刚进机的饼干上,这样循环利用,减少了油耗。

4.机构特点

该机为油盘高速离心甩油式喷油机,雾化好,较双轴滚动式和喷油嘴式先进理想,油量无级调节,油温从0~40℃任意选择并自动控温,油经水间接加热。它是提高饼干色香味不可缺少的设备。

(九)集油网带机(图3-3-11)

图3-3-11 集油网带机外形图

该机通常安置于喷油机或平弯机之后,起到回收饼干含油多余部分的作用。

(十)夹心饼干机(图3-3-12)

图3-3-12 夹心饼干机

1-主机 2-饼干上片输送架导槽 3-饼干下片输送架导槽 4-第-夹心馅料充填机 5-夹心馅料充填机构 6-第二夹心馅料充填机 7-饼干输送带

1.用途

主要用来将两片饼干间夹馅料并使之黏合、完成饼干夹心操作。

2.组成

该机由主机、饼干上、下片输送架导槽、夹心馅充填机及输送带等组成。

3.工作原理

夹心饼干机工作时,将用于夹心的饼干分别排列放入饼干输送架的导槽内,通过饼干拨料链条的运动,带动饼干单片向前做水平移动。夹心馅料经馅料充填机的输送机构输送到馅料出料轴。馅料出料轴的转动与推进饼干的链条同步,出料轴每转动1次,相应的搬运链条向前运动一个间隔。当饼干到达馅料出料口时,即将馅料注在饼干上部。注完馅料的饼干继续向前移动。在机器的中部装有光电检测装置来检测有无饼干通过。当饼干通过时,光电装置即指令电磁阀打开,将另一种夹心馅料注入饼干上部。2次注料后的饼干继续向前移动,当到达饼干上片输送架时,上片饼干即与下片饼干黏合,完成饼干夹心的操作。

两道馅料充填机构可以分别控制,以便制作单色或双色的夹心饼干。

4.机构特点

该机安装光电检测装置,检验有无饼干通过。同时还有两道充填机构,便于制作单色或双色的夹心饼干、用途广、机构灵敏。

(十一)HF-9华夫饼干机(图3-3-13)

图3-3-13 HF-9华夫饼干机

1.用途

该机用于烘制华夫饼干。

2.机构特点

该机操作简便,安全可靠,适应性强,生产的成品厚薄均匀、色泽美观、香脆可口。

3.技术特征

生产能力:10kg/h;

电机功率:1.5kW;

电热功率:18kW;

外形尺寸:Φ1750mm×1130mm;

重量:600kg。

(十二)HF-9华夫切片机(图3-3-14)

图3-3-14 HF-9华夫切片机

1.用途

该机与HF-9华夫饼干机配套,将双层或三层夹心华夫饼干迅速切成小长方形成品。

2.机构特点

该机结构简单,可与三台华夫饼干机配套连续生产,操作轻松省力,制品外形规则、均匀,切片清晰。

3.技术特征

生产能力:>40kg/h;

电机功率:电机工:0.75kW;

电机Ⅱ:0.37kW;

电机Ⅲ:0.37kW;

外形尺寸:1980mm×1630mm×950mm;

重量:400kg。

(十三)双色饼干夹心机(图3-3-15)

图3-3-15 双色饼干夹心机

1.用途

该机适用于长、方、圆等各种规格的饼干夹心。可将奶油、果酱、巧克力等夹入饼干,制作双色夹心或单色夹心饼干。

2.技术特征

(十四)平弯机(图3-3-16)

图3-3-16 平弯机

1.用途

该机是在生产车间长度不足的状况下,用于饼干经烤炉回转再达到冷却的设备。

2.机构特点

该机有180°和90°两种。输送带有钢丝网与聚酯带两种。

3.生产单位

广东茂名食品机械厂。

(十五)冷却输送带(图3-3-17)

图3-3-17 冷却输送带

1.用途

该机用于饼干的冷却、输送,使饼干经一段时间运行自然冷却,以便转入理饼机或包装台工序。

2.机构特点

该机冷却带形式有水平、倾斜与重叠三种。

冷却带的长短,由用户根据场地和需要来确定,可灵活掌握。

(十六)输送带转换机(图3-3-18)

图3-3-18 输送带转换机外形图

1.用途

该机用来将水平冷却转换成倾斜冷却,也可将楼上或楼下转换。

2.特点

该机灵活,使用方便,可多方位转换,使生产线流畅。

(十七)理饼机(图3-3-19)

图3-3-19 理饼机

1.用途

该机用于对冷却后的饼干进行整理、便于包装。

2.特点

该机灵活方便,可视饼干形状大小任意调整间距,操作方便。

(十八)饼干生产线简介

1.奥地利威化卷型饼干生产线(图3-3-20)

图3-3-20 奥地利威化卷型饼干生产线

2.奥地利酥卷生产线(图3-3-21)

图3-3-21 奥地利酥卷生产线

3.德国多功能饼干生产自动线(图3-3-22)

图3-3-22 德国多功能饼干生产自动线

4.奥地利64模威化饼干自动生产线(图3-3-23)

图3-3-23 奥地利64模威化饼自动生产线

随便看

 

离鸟网收录3541549条中英文词条,其功能与新华字典、现代汉语词典、牛津高阶英汉词典等各类中英文词典类似,基本涵盖了全部常用中英文字词句的读音、释义及用法,是语言学习和写作的有利工具。

 

Copyright © 2004-2024 vtrois.com All Rights Reserved
更新时间:2026/4/8 19:59:20