网站首页  词典首页


请输入您要查询的字词:

 

字词 高层建筑主轴线的测设
类别 中英文字词句释义及详细解析
释义

高层建筑主轴线的测设


高层建筑的主轴线是施工中一条主要的控制线,不仅关系到建筑物的位置是否准确,而且直接关系到其他各部位的控制线(点)正确与否,必须根据不同情况进行测设。

(一)高层建筑主轴线的布设形式

根据高层建筑的面积、形状、尺寸情况和施工场地的实际条件,高层建筑的主轴线可布置成以下几种形式,如图13-1所示。从图13-1中可以看出:无论采用何种布置形式,主轴线上的点数均不得少于3个。

图13-1 主轴线的布设形式

(二)根据建筑红线测设主轴线

在城市建设中,为使各拟建建筑物按照城市规划进行,新建建筑物均应由规划部门给设计或施工单位规定出建筑物的边界位置,这个限制建筑物边界位置的线称为建筑红线。建筑红线是必须遵循的建筑界限线,无特殊原因、不经过规划部门批准,任何单位和个人不得擅自更改。

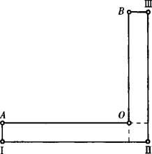
如图13-2中的Ⅰ、Ⅱ、Ⅲ三点设为地面上测设的场地边界点,也是规划部门给定的建筑红桩点,其连线Ⅰ-Ⅱ、Ⅱ-Ⅲ则称为建筑红线。建筑物的主轴线AO、OB就是根据建筑红线测定的。由于建筑物的主轴线和建筑红线平行或垂直,所以用直角坐标法来测设主轴线是比较方便的。

图13-2 根据建筑红线测设主轴线

当4、O、B三点在地面上标出后,应在O点处架设经纬仪,检查校核AOB是否等于90°。OA、OB的长度也要进行实量校核,如误差在允许范围内,即可作合理的调整。

(三)根据已有建筑物测设主轴线

在现有建筑群内新建或扩建时,设计图上通常给出拟建建筑物与原有建筑物或道路中心线的位置关系数据,主轴线就可以根据给定的这些数据在施工现场进行测设。图13-3表示的是几种常见的情况,画有斜线的为原有建筑物,未画斜线的为拟建建筑物。

图13-3 根据已有建筑物测设主轴线

(四)根据建筑方格网测设主轴线

当施工现场有设置的建筑方格网控制时,可以根据建筑物各角点的坐标测设主轴线,这也是测设主轴线比较简单的一种方法。

随便看

 

离鸟网收录3541549条中英文词条,其功能与新华字典、现代汉语词典、牛津高阶英汉词典等各类中英文词典类似,基本涵盖了全部常用中英文字词句的读音、释义及用法,是语言学习和写作的有利工具。

 

Copyright © 2004-2024 vtrois.com All Rights Reserved
更新时间:2026/4/5 15:52:39