网站首页  词典首页


请输入您要查询的字词:

 

字词 平行线间的距离
类别 中英文字词句释义及详细解析
释义
平行线间的距离

平行线间的距离pingxingxian jian de juli

两条直线平行,从一条直线上的任一点向另一条直线引垂线,垂线段的长.两条平行线间的距离处处相等.

☚ 平行线的性质定理   两组边分别平行的角的性质 ☛
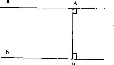
平行线间的距离

平行线间的距离Pingxingxian jian de juli

两条直线平行, 从一条直线上的任一点向另一条直线引垂线,垂线段的长,叫做这两条平行线间的距离。如图中线段AB是平行线a和b间的距离。两条平行线间的距离处处相等。

☚ 点到直线的距离   同位角 ☛
00004703
随便看

 

离鸟网收录3541549条中英文词条,其功能与新华字典、现代汉语词典、牛津高阶英汉词典等各类中英文词典类似,基本涵盖了全部常用中英文字词句的读音、释义及用法,是语言学习和写作的有利工具。

 

Copyright © 2004-2024 vtrois.com All Rights Reserved
更新时间:2026/4/9 5:49:45