网站首页  词典首页


请输入您要查询的字词:

 

字词 柑桔类水果饮料加工
类别 中英文字词句释义及详细解析
释义

柑桔类水果饮料加工citrus beverage processing

柑桔类水果简称柑桔,包括橙、桔、柠檬、香橼等。其原汁或浓缩汁可配制成饮料。
柑桔原汁的加工 其加工工艺过程包括原料预处理、榨汁、粗滤、离心分离、脱气和油水分离等工序,并在加工原汁的同时加工果皮油。有时直接用果肉生产果肉浸提汁。
预处理 入库前去除原料中的树叶、果柄及其他杂物和不符合质量要求的果实,从每个仓库中有代表性地选取20~25千克果实试样进行品质检验。原料从收获到加工不宜超过1~2天。原料入库量取决于加工厂的昼夜生产率。将质量检验(白利度,含酸量,白利度/含酸量比,出汁率)结果要制成表格,附在相应的贮藏容器上。加工时以此为根据安排生产,以保证产品的质量。果实先用清洗剂和刷子清洗,再用水喷淋,然后手工拣选。果实按大小分类送入料仓以待榨汁。
榨汁 目前常用的柑桔榨汁机有四种, 即FMC榨汁机、布朗(Brown)榨汁机、英德利卡多(Indelicato)榨汁机和贝都齐(Bertuzzi)榨汁机。由于榨汁机的各个榨汁器(榨汁单元)分别只适合于加工某一尺寸(大小)的果实,为了得到最佳出汁率和良好的原汁质量,在榨汁前需要对果实按尺寸大小进行分级。如果进入榨汁器的果实的尺寸不符合榨汁器的要求,不仅出汁率会下降,而且汁液中的果皮油含量还会增加。此外,果实的输送速度以尽可能地使榨汁机的全部榨汁器满负荷工作。❶FMC榨汁机(图1)。每台FMC榨汁机上有6~8个榨汁器。榨汁器的主体是由硬金属制成的形状相互吻合的上、下爪形钵。下爪形钵固定不动,上爪形钵可作垂直直线运动。果实经输送带进入下钵。上刀片和上钵向下运动,上、下圆刀片分别在果实的上部和下部各切下一个直径为2.5厘米的果皮片。上钵继续向下运动,把汁液、果肉、果实中轴和果核如同“瓶塞”压进粗滤筛管中,并同时向果实喷水(1千克果实约喷1升水),使从果皮中流出来的果皮油乳状液从榨汁器的后方被冲走。果皮破为两半,先被推向榨汁器的上方,然后再从榨汁器前方被推出。下一个果实进入榨汁器,重复此过程。先进筛管的“瓶塞”不仅受后进筛管的“瓶塞”的压力,而且还受到在筛管内从下向上运动的空心管的压力,因而前一个“瓶塞”中的汁液和少量果肉经筛管的筛孔(直径约为1毫米)流出,经集液管流至粗滤机。每个果实在榨汁器中都形成四部分产品,一是经筛管筛孔流出的汁液和少量果肉,二是从空心管底部排出榨汁器的果核、果肉纤维和果实中心轴,三是从榨汁器后方排出的果皮油和果皮微粒,四是从榨汁器前方排出的果皮。
❷布朗榨汁机。果实按尺寸大小分别进入相应的榨汁器单元的料斗中,经输送轮到达输送带(图2)。每个果实被输送带上的一对固定器固定,并在输送过程中被切果刀一剖为二。榨汁时,两个旋转榨汁头分别同时压向各半个果实榨出汁液。汁液和果肉流至打浆机,果皮则松动后离开输送带。另一种类型的布朗榨汁机工作时果实不由输送带而由旋转轮输送并在轮上一剖为二,然后把各半果实压向筛子进行榨汁。汁液和部分果肉经筛孔流出,果皮和其余果肉则留在筛面上。果皮油只能在榨汁前或榨汁后制取。果实在布朗榨汁机中分为两个部分: 一为汁液、果肉、果肉纤维和果核,二为果皮、残留果肉和附在果皮上的纤维。减少旋转榨汁头和固定钵之间的距离或提高固定钵抵抗旋转榨汁头的气体压力,都可以提高出汁率。
❸英德利卡多榨汁机。有两种榨汁方法,一种是将果实剖为两半后用旋转榨汁头制汁;另一种是先制果皮油,再将果实剖为两半,用挤压辊把果实压向格栅筛制汁。
❹贝都齐榨汁机。有两种榨汁方法,一种是果实被剖成两半,到达有半圆形凹穴(“窝”)的滚筒的“窝”中,随滚筒旋转到达榨汁工位,然后形状与“窝”相似的旋转榨汁头压向果实,进行榨汁。随汁液流出的还有部分果肉和果核。残存的果皮则留在“窝”中。另一种则事先不用按尺寸大小对果实进行分类,果实受光面榨汁辊的挤压。

(a) 果实进入榨汁器中

(b) 上、下刀片将果实的上、下部各切下一片果皮

(c) 压榨

(d) 压榨结束,推出果皮

图1 FMC柑桔榨汁机榨汁过程

1.上爪形钵; 2.下爪形钵; 3.上刀片,将果实上半部分切出一个圆形开口; 4.下刀片,将果实下半部分切出一个圆形开口; 5.粗过滤用的筛管; 6.空心管; 7.果皮向上离开榨汁器; 8.滤出汁液和少许果肉的滤管; 9.果实在此处被空心管挤压;10.果皮和果皮油

图2 布朗榨汁机工作原理

1.果实输送轮;2.在输送带上固定果实;3.切果刀将果实一剖为二;4.榨汁;5.榨汁(局部放大);6.固定钵;7.果实钵;8.旋转榨汁头;9.汁液流出;10.果皮松动,与输送带分离; 11.推出果皮


粗滤 其目的是将多余的果实成分从汁液中分离出去。常用的FMC柑桔通用粗滤机是一种转速很高、螺杆与分离筛间距很小的螺旋式榨汁机。螺杆不断地将含果肉的汁液输往粗滤机内部。机器终端有一个节流挡料板,果肉至此处形成渣饼,从而产生反压力,迫使原汁从筛孔流出。原汁经粗滤机下部的原汁罐泵入浓缩设备的缓冲罐中。果肉从挡料板开口处排出。原汁罐中有一块垂直挡板,可以隔开开始工作时在工作压力不足的情况下流出的原汁。在正常情况下,从粗滤机获得的原汁的果肉含量、果胶含量和生物类黄酮类化合物含量都很低,可用以制造高浓度浓缩汁。
离心分离 其目的是降低过高的果肉含量和分离原汁中的不理想成分。离心分离也可用做浓缩的预处理作业。它还可以同时排除原汁中比重大于原汁的成分,如小果核以及富集在果肉中的不利成分黄酮类化合物。缺点是导致出汁率下降和增加设备投资。
脱气和油水分离 进入原汁中的空气是造成柑桔异味的主要原因。在柑桔加工过程中必须避免半成品和原汁与空气接触。在榨汁和粗滤过程中,原汁有可能出现氧气饱和现象。所以必须排气。用高真空降膜蒸发器可以除去原汁中的大部分氧气。在现代无菌果汁加工设备中,脱气装置通常安装在加热装置之前。将热原汁喷入真空室中可以去除原汁中的果皮油。这种过去很少采用的工艺可以为小型加工厂生产贫油的甜橙原汁。
果皮油加工 外果皮的细胞层内含有果皮油的油腺。在FMC榨汁机中,果皮油乳状液与外果皮碎块一起由榨汁机进入专用的果皮油初滤机中。乳状液在初滤压力的作用下经筛孔流出,从而滤出绝大部分较为粗大的固体颗粒。乳状液中较小的果皮颗粒和残渣则在自排渣式离心分离机清除,最后再用分离乳水用的离心分离机将乳状液中的果皮油分离出来。为了降低环境污染程度,除油后废水仍然流回设备中循环使用。在布朗榨汁机中,果皮油是在榨汁前获得的。制油时,果实进入平行排列的、整个圆周上布满锯齿形小刀的辊轴上,下部浸没在反向流动的水中。旋转着的小刀切开油腺,果皮油与水形成乳状液流出设备。然后用同样的方法制得果皮油。布朗榨汁机则先榨汁后制油,榨过汁的半个果皮被切开,平整,经锯齿形辊轴输往剥皮刀,切出含有油腺的薄薄的外果皮层,再用挤压辊挤出果皮油,用水乳化果皮油,最后离心分离。在上述第2种英德利卡多榨汁机中,整果前进的同时,其外果皮被两个旋转滚筒搓擦;贝都齐榨汁机则用一组搓擦辊搓擦整果外果皮;搓擦的同时均用水喷淋果实。由果皮油乳状液制取果皮油的过程与上述相同。果皮油的浓缩通常在真空状态下进行。浓缩时,挥发性的碳氢化合物D-帖二烯和浓度可达95%的果皮油主要成分从乳状液中蒸发出来。浓缩果皮油的芳香物质浓度为普通果皮油的2.5~40倍,而且相对不易氧化,不易出现异味,所以还可以在高温下,例如在焙烤食品中使用。
果肉浸提汁的加工 利用四级逆流式柑桔果肉浸提系统(图3)加工,果肉和水要混合4次,再分离4次。每次浸提,果肉的固形物含量都比上一次浸提时高,因而所得的浸提液的固形物含量也比上一次高。饮用水进入第四级混合器,与已经被浸提过数次、固形物含量很低的果肉混合,进行浸提。新鲜果肉进入第一级混合机,与已浸提了三次的液体混合,进行浸提。从第四级混合机中排出的废弃果肉的可溶性固形物的含量为1~2白利度。从第一级混合机中流出的成品浸提液的固形物含量在4~8白利度之间。浸提汁流到蒸发器的预贮罐中后添加100~500毫克/升果胶分解酶进行酶处理,再浓缩到60白利度;添入的果胶分解酶在浓缩时受热钝化。在饮料中添加果肉浸提汁不仅能够降低成本,而且还可以获得所需的浑浊度。
柑桔浓缩汁的加工 原汁浓缩的目的是提高柑桔半成品的化学稳定性和微生物稳定性,减少柑桔半成品的运输体积和贮藏体积。目前柑桔加工业主要采用高温短时蒸发器和APU片式蒸发器进行浓缩作业。在浓缩柑桔原汁时,挥发性成分以液相和油相从原汁中分离出来。国际市场上流通的主要是62~72白利度柑桔浓缩汁。这种高固形物浓度的浓缩汁的水分活度很低,渗透压却很高,因而极少出现微生物腐败现象。普通浓度的浓缩汁的贮藏温度通常为-7~-6℃,而高浓度浓缩汁的贮藏温度可达+4℃左右,体积也小,仅为原汁的1/6~1/7左右,节约了运输和贮藏成本。但高浓度浓缩汁粘度过高,难以输送,易产生非酶褐变。

图3 柑桔果肉四级浸提示意图

1.原汁(12白利度)输往粗滤机;2.粗滤后的原汁输往蒸发器;3.果肉(12白利度)进入第一级混合机;4.果肉浸提汁(5.3白利度)进入第一级混合机;5.果肉(8.6 白利度)进入第二级混合机;6.果肉浸提汁(7.8白利度)输往浸提汁蒸发器; 7.果肉浸提汁(3.3白利度)进入第二混合器; 8.果肉(5.9白利度)进入第三级混合器; 9.果肉浸提汁(1.5白利度)进入第三级混合器; 10.果肉(3.6白利度)进入第四级混合器; 11.添水(每千克果肉添加1.25千克水); 12.排出浸提后的果肉(1~2白利度)


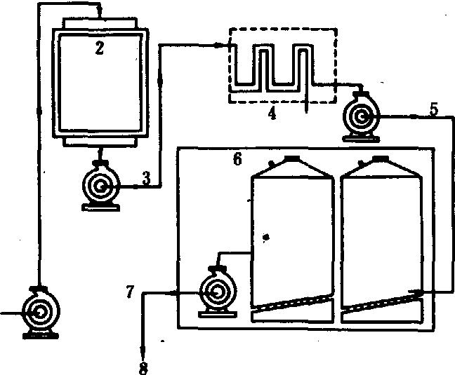
柑桔浓缩汁常常贮藏在不锈钢容器中。为了避免在贮藏时的异味变化, 应在浓缩汁中添加大约0.005%的果皮油。浓缩汁贮藏要经过浓缩、冷却等作业过程(图4),绝大多数浓缩汁容器为圆柱形大罐。

图4 甜橙原汁和甜橙浓缩汁的浓缩、冷却和贮藏的作业流程示意

1.原汁(12白利度,21℃)管道; 2.蒸发器; 3.浓缩汁(65白利度,16℃)管道; 4.冷却装置; 5.浓缩汁(65白利度,-7℃)管道; 6.库房; 7.浓缩汁(65白利度,-7℃)管道,用泵输送; 8.出厂


柑桔饮料的加工 柑桔饮料是将柑桔原汁或柑桔浓缩汁与水、芳香物质以及其他配料混合后制得的可以直接饮用的饮料。中国的柑桔饮料分类如下:
柑桔原汁 包括3类制品:❶原料柑桔用机械方法(如榨汁)加工制得的、没有发酵过的、具有柑桔水果原有特征的制品;
❷原料柑桔采用渗滤或浸提工艺制得的汁液,用物理方法除去加入的水量所得的、具有柑桔原有特征的制品;
❸在柑桔浓缩汁中加入柑桔原汁在浓缩过程中所失去的天然水分等量的水所得的、具有与❶、
❷所述相同特征的制品。金属罐装柑桔原汁饮料已问世50多年。把新鲜原汁加热到90℃左右,保温1分钟以钝化酶,封口后高温杀菌,最后冷却。纸质罐是近年来发展起来的由刚性复合纸质材料制成的新型饮料包装容器,比金属罐便宜。纸质罐加热到116℃以杀灭微生物;原汁用片式热交换器杀菌,冷却后无菌灌注(也可热灌注)。
柑桔浓缩汁 用物理方法从上述❶、
❷两种原汁中除去一定比例的天然水分后所得的、具有柑桔水果应有特征的制品。
柑桔原浆 包括两类制品:❶整只柑桔或柑桔可食部分用打浆工艺制得的、没有除去汁液的、没有发酵过的、具有柑桔原有特征的浆状制品;
❷在柑桔浓缩浆中加入柑桔原浆在浓缩过程中所失去的天然水分等量的水所得的、具有与上述相同特征的制品。
柑桔浓缩浆 用物理分离方法从柑桔原浆中除去一定比例的天然水分后所得的具有柑桔水果应有特征的酱状制品。
柑桔汁 用柑桔原汁(或浓缩汁)经糖液、酸味剂等调制而成的能直接饮用的制品。其原汁含量不少于40%(以质量计)。
果肉柑桔汁饮料 用柑桔原浆(或浓缩浆)经糖液、酸味剂等调制而成的能直接饮用的制品。其原浆含量不少于40%(以质量计),可溶性固形物含量不少于13%。
高糖柑桔汁饮料 用柑桔原汁(或浓缩汁)经糖液、酸味剂等调制而成的、含糖较高的稀释后饮用的制品。其原浆含量不少于5.0%(以质量计),乘以产品标签上标志的稀释倍数;总含糖量不少于8.0%(以转化糖计),乘以产品标签上标志的稀释倍数。
果粒柑桔汁饮料 在柑桔原汁(或浓缩汁)加入切细的柑桔果肉或其他果肉,经糖液、酸味剂等调制而成的制品。其原汁含量不少于10%(以质量计),果粒含量不少于5%。
柑桔汁饮料 用柑桔原汁(或浓缩汁)经糖液、酸味剂等调制而成的制品。其原汁含量不少于10%(以质量计)。
柑桔水 用柑桔原汁(或浓缩汁)经糖液、酸味剂等调制而成的制品。其原汁含量不少于5%(以质量计)。
随便看

 

离鸟网收录3541549条中英文词条,其功能与新华字典、现代汉语词典、牛津高阶英汉词典等各类中英文词典类似,基本涵盖了全部常用中英文字词句的读音、释义及用法,是语言学习和写作的有利工具。

 

Copyright © 2004-2024 vtrois.com All Rights Reserved
更新时间:2026/4/9 13:06:12