网站首页  词典首页


请输入您要查询的字词:

 

字词 407型小包透明纸/软条包装机
类别 中英文字词句释义及详细解析
释义

407型小包透明纸/软条包装机


1.结构特点

(1)407型小包透明纸/软条包装机的小包透明纸包装单元,与401型小包透明纸包装机结构相同。即透明纸与拉线用热熔胶粘合,透明纸的折叠搭口用热封烫合。吸风装置可确保透明纸不偏斜地进入机器通道。当推进器将烟盒推入到折叠转台的工位上,同时由锯齿型转刀按预定长度裁切透明纸呈“U”型包住烟包;由侧面的折叠器对烟包顶部和底部的透明纸进行折叠。两边耸起的折翼由同一摆动折叠器及一固定折叠器折叠。

在折叠转台间歇停止期内,烟包侧面透明纸先被热封烫合;当烟包从折叠转台推入折叠通道时,烟包顶部和底部的透明纸将完全折叠并被热封;在折叠通道末端,由托板将烟盒依次托送到堆码台上,烟包侧面由加热器按顺序热封;当烟包上升时,烟包顶部和底部的透明纸长折边一侧被一活动折叠器折叠,并进行最后的热封。包装好的小包烟呈双层被推出。

(2)从小包透明纸包装单元输出的小包经输送带送至条包单元,一组小包进入升降器并下降时,该组小包烟被推进器推向条包纸,并进入转动槽内。条包纸已预先从卷筒拉出,并被分切成一定长度。在转动槽中,条包纸成“U”型包住该组小包;翻转180°后,长边粘结线由冷胶喷嘴上胶后,该组小包被推入折叠通道。此过程中,长折翼由一个真空板吸住,在折叠通道中,除上折翼外,整条烟已被折叠包装。上折翼上胶后,条包被提升至一加压烫干装置中,并折好上折翼。条包在烫干装置顶部由爪链向左方或右方送出。检测仪能将不合格的条包剔出机外。

2.主要技术参数

小包烟支数量:10~25(30)支。

每包尺寸范围:长×宽×高为125mm×90mm×27mm(最大);

长×宽×高为60mm×42mm×16mm(最小)。

条包尺寸范围:长×宽×高为340mm×125mm×90mm(最大);

长×宽×高为125mm×60mm×40mm(最小)。

电力消耗:9kW。

压缩空气:0.6MPa,0.6m3/h。

真空:0.05MPa,7m3/h。

质量:约4900kg。

噪音:小于80dB(A)。

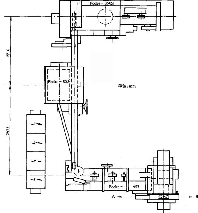
3.安装图示

见图9-4-6所示。

图9-4-6 Focke 350S-802-407翻盖硬盒软条包装机组平面布置图

4.生产厂家

德国佛克(Focke)公司。

随便看

 

离鸟网收录3541549条中英文词条,其功能与新华字典、现代汉语词典、牛津高阶英汉词典等各类中英文词典类似,基本涵盖了全部常用中英文字词句的读音、释义及用法,是语言学习和写作的有利工具。

 

Copyright © 2004-2024 vtrois.com All Rights Reserved
更新时间:2026/4/7 14:58:59