网站首页  词典首页


请输入您要查询的字词:

 

字词 喷放仓
类别 中英文字词句释义及详细解析
释义

喷放仓


1.结构概述

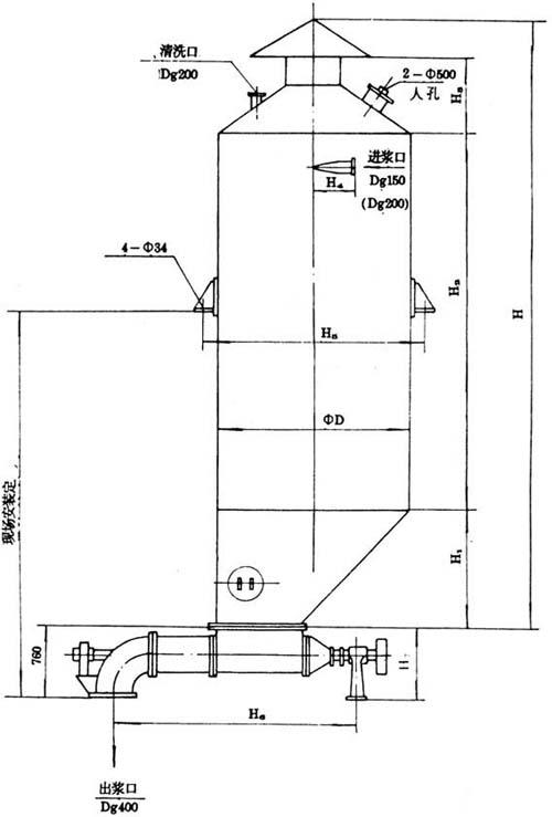
喷放仓通常是用A3钢板焊接的常压容器,一般不能配热回收装置,出浆设备采用螺旋输送器,结构见图6-3-20。

图6-3-20 喷放仓结构

安阳机械厂还生产一种活底喷放仓,专供蒸球的配套,外形结构见图6-3-21。

图6-3-21 50M3活底喷放仓

2.主要技术特征

喷放仓的主要技术特征见表6-3-19及表6-3-20。

表6-3-19 喷放仓主要技术特征

表6-3-20 活底喷放仓主要技术特征

随便看

 

离鸟网收录3541549条中英文词条,其功能与新华字典、现代汉语词典、牛津高阶英汉词典等各类中英文词典类似,基本涵盖了全部常用中英文字词句的读音、释义及用法,是语言学习和写作的有利工具。

 

Copyright © 2004-2024 vtrois.com All Rights Reserved
更新时间:2026/4/9 8:16:10